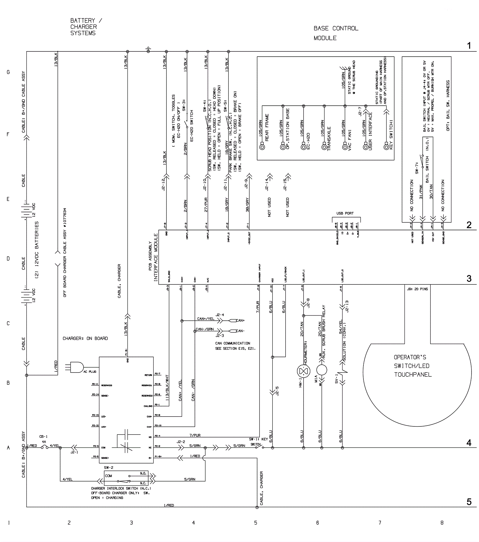
Electrical Assembly 1 - Push - After SN 10891710
Click to enlarge