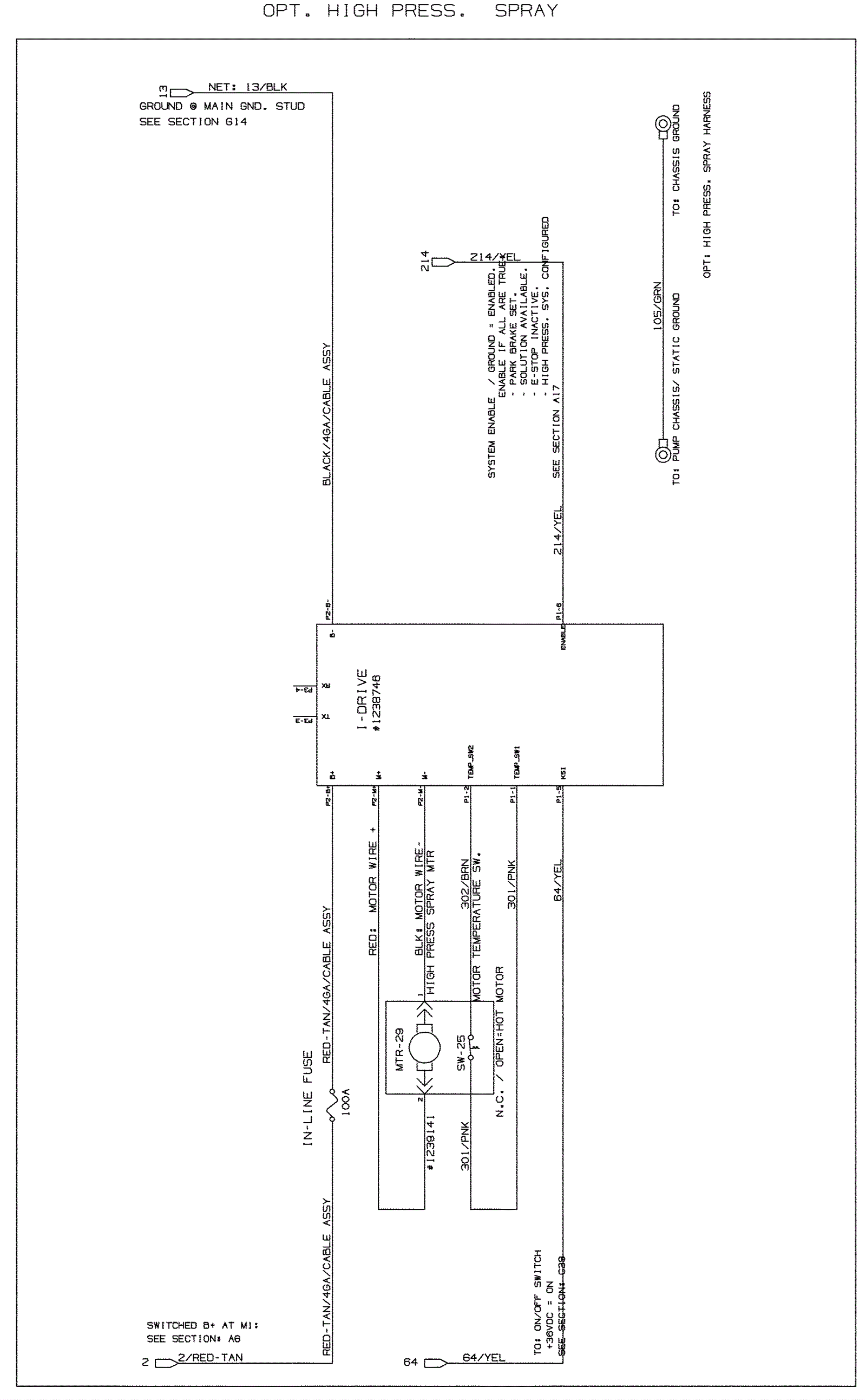
Electrical Schematic - (After SN 011999) - 7
Click to enlarge