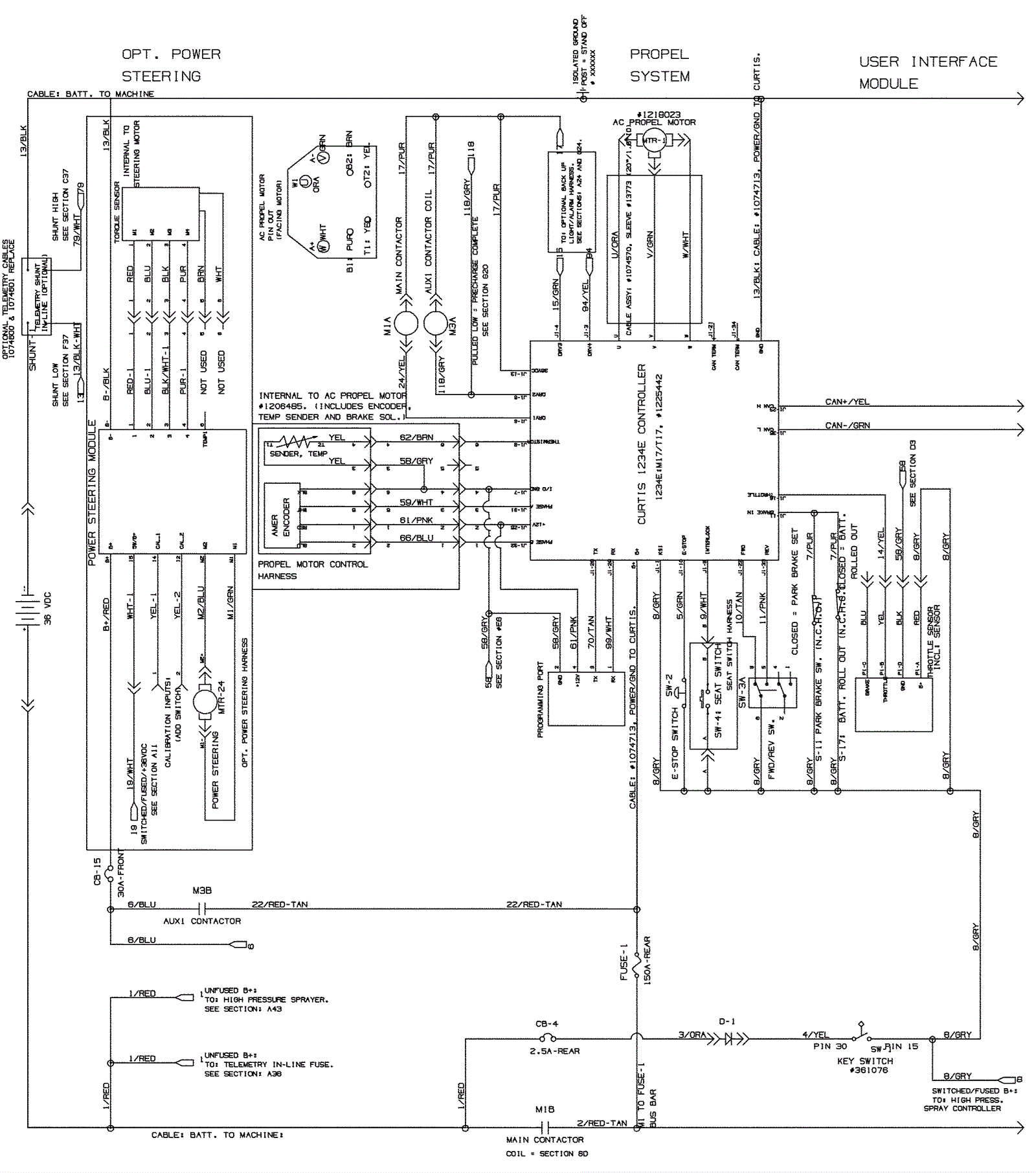
Electrical Schematic - (After SN 011999) - 1
Click to enlarge