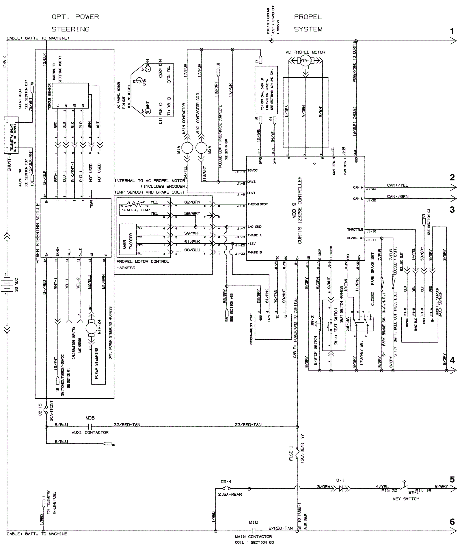
Electrical Schematic - (Before SN 011000) - 1
Click to enlarge