8210
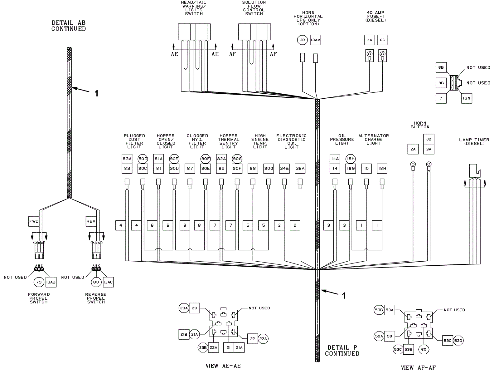
Main Wire Harness - Before SN 010000 - 4
Click to enlarge
#
Part
Description
Price
Req
Notes
Availability
1
675-8242
HARNESS, MAIN [8200L IC] (Tennant Industrial)
$3,669.32
1
usually ships 10-13 days