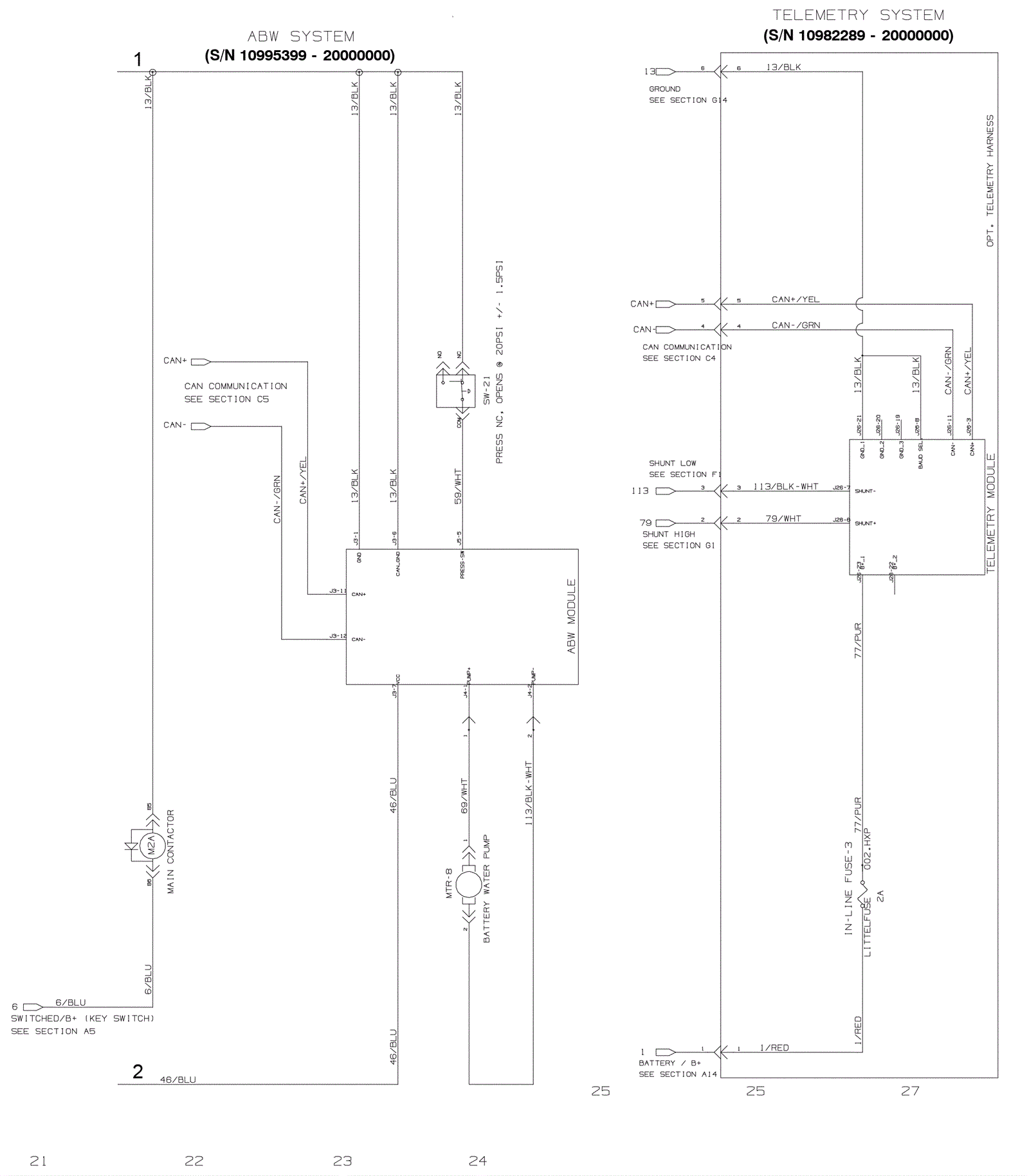
Electrical Diagram 8 - Between SN 10995399 and 20000000
Click to enlarge