SPEED SCRUB 15
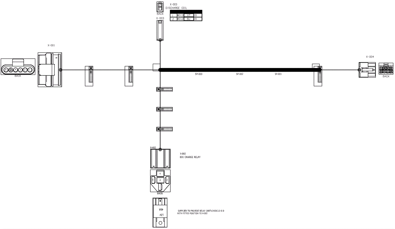
Jumper Wiring Harness Assembly - AGM - After SN 11067407
Click to enlarge
#
Part
Description
Price
Req
Notes
Availability
1
375-2652
Jumper harness
$244.97
1
usually ships 10-13 days