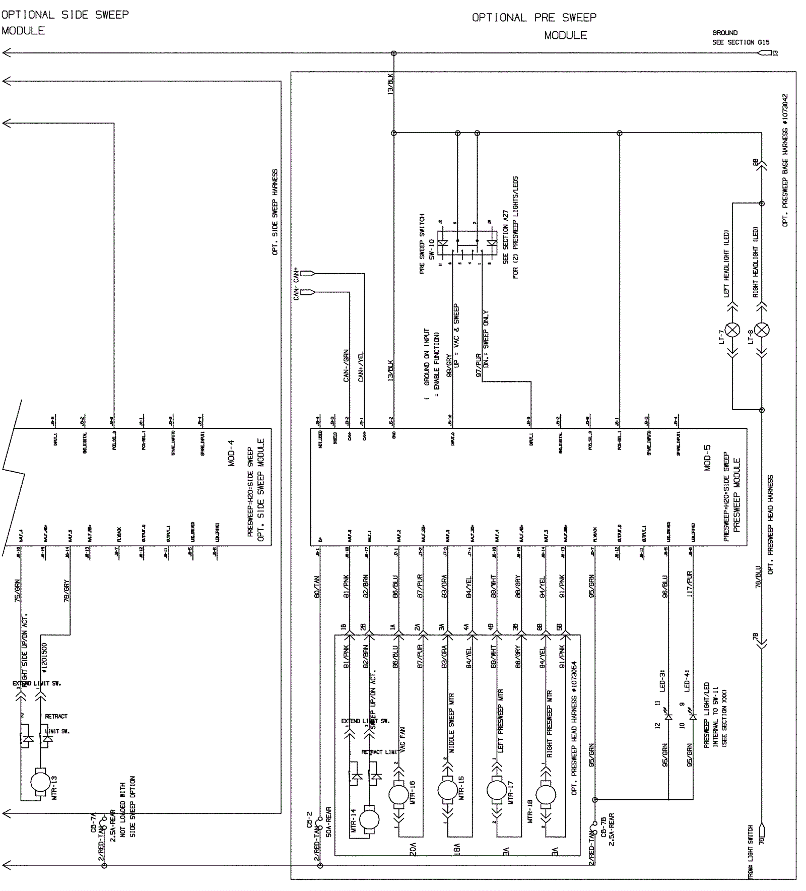
Wiring Diagram After SN 013999 - Part 4
Click to enlarge