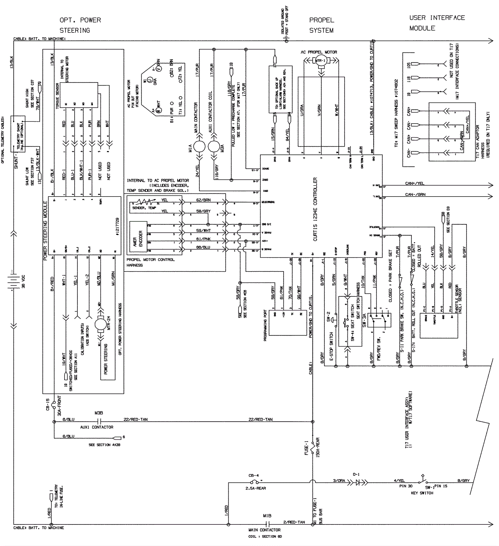
Wiring Diagram After SN 013999 - Part 1
Click to enlarge