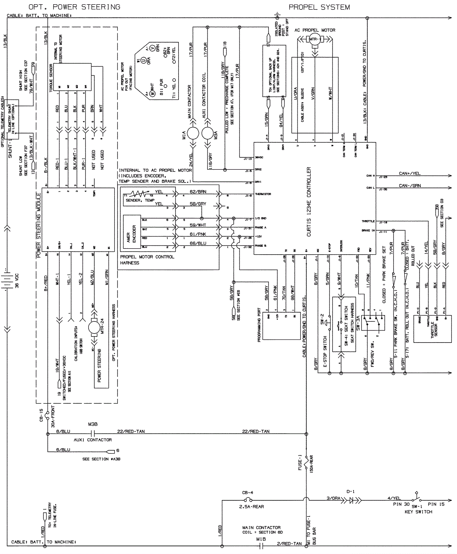
Wiring Diagram From SN 012999-014000 - Part 1
Click to enlarge