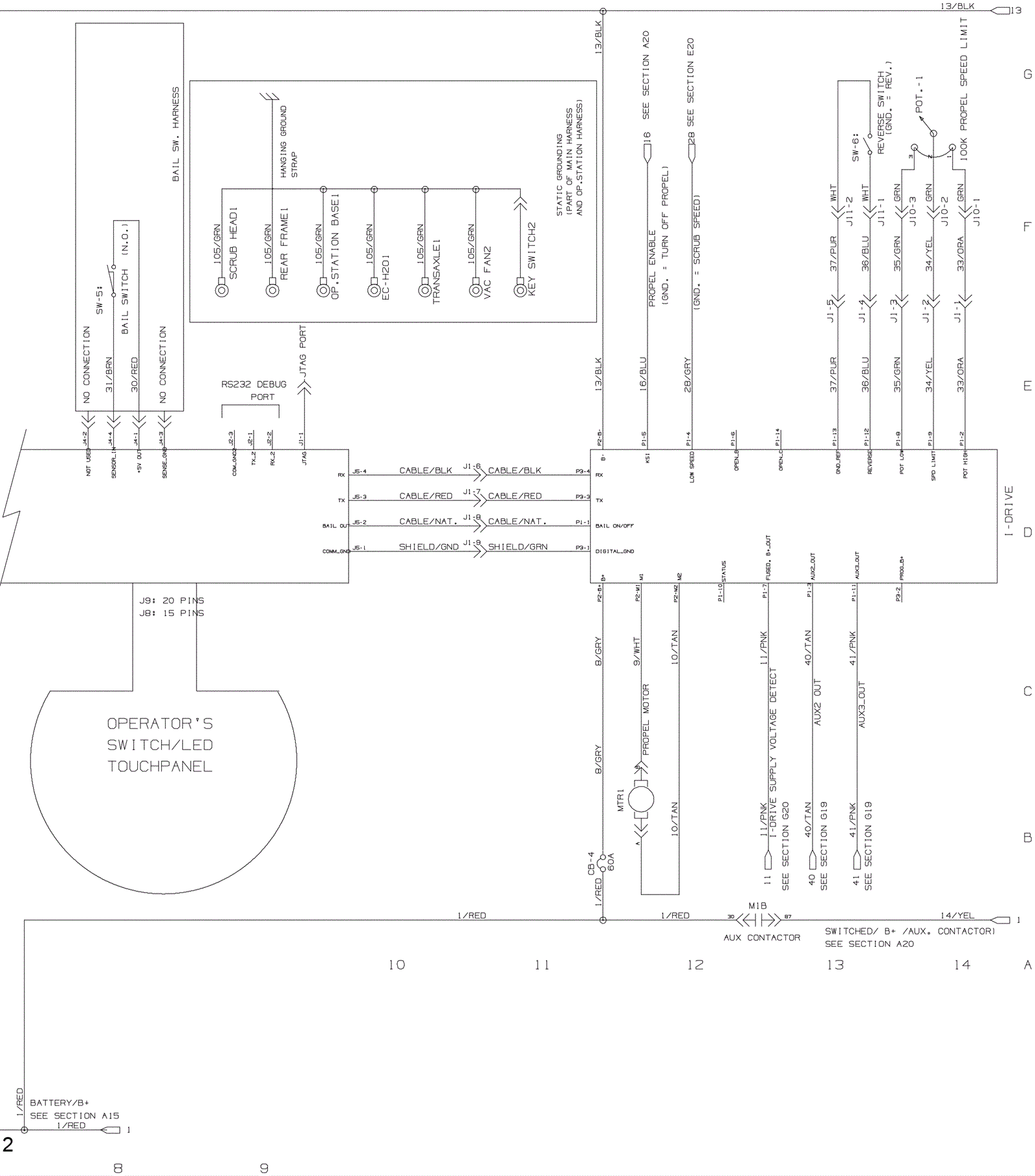
Wiring Diagram - TPPL 2
Click to enlarge