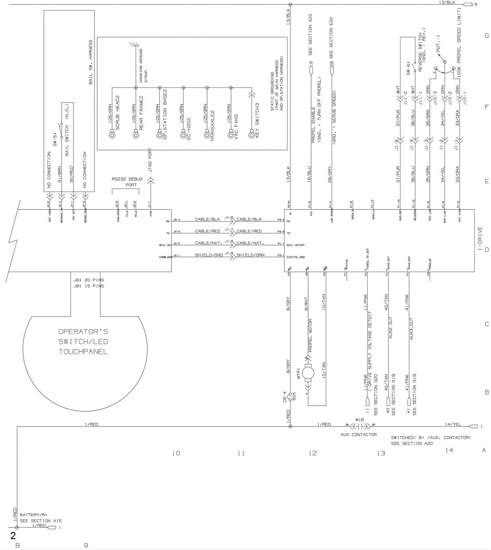
Wiring Diagram - Lithium 2
Click to enlarge