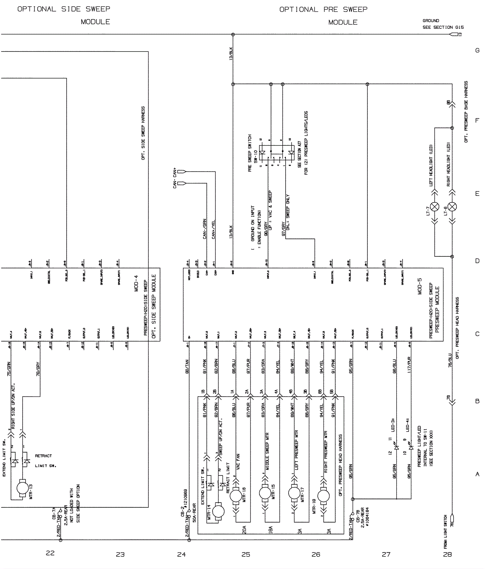
Wiring Diagram Before SN 011000 - Part 5
Click to enlarge