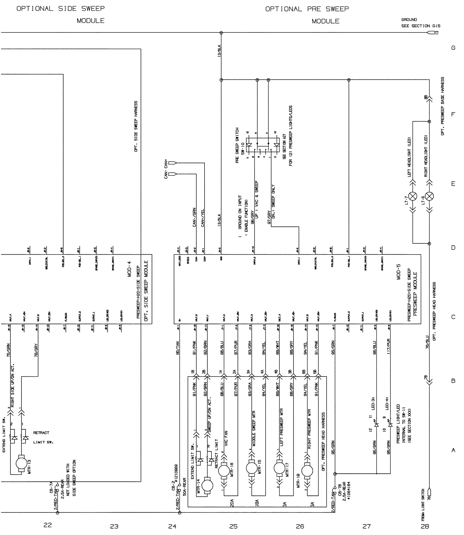
Wiring Diagram Before SN 011000 - Part 4
Click to enlarge