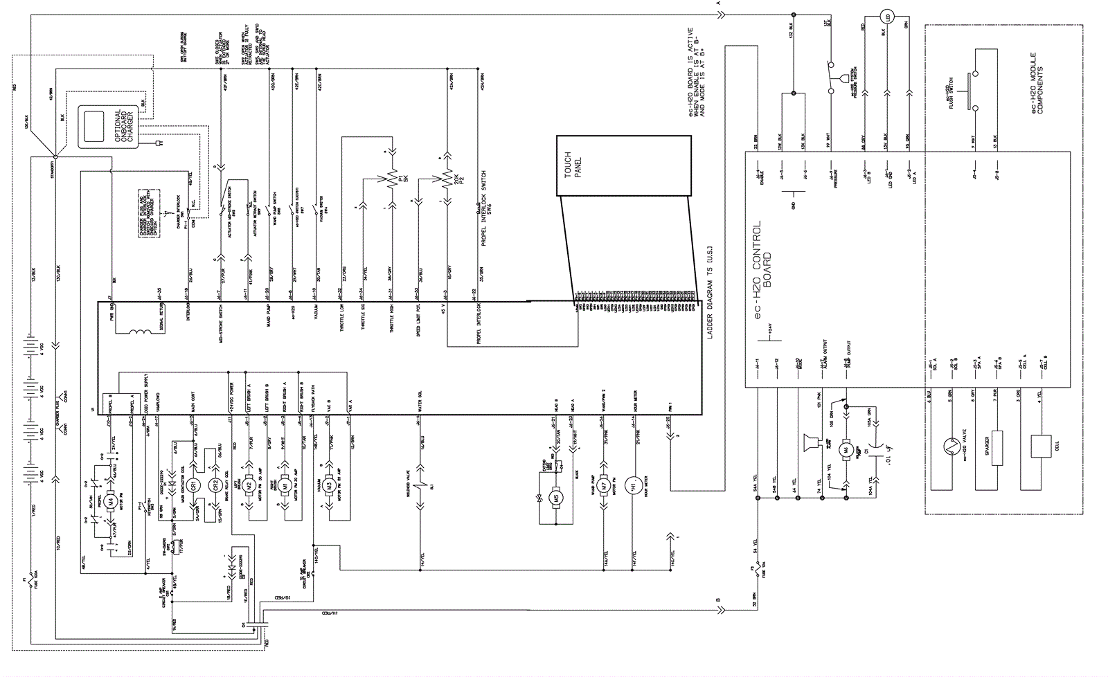
ec-H2O Electrical Diagram - Between SN 10632988-10742212
Click to enlarge