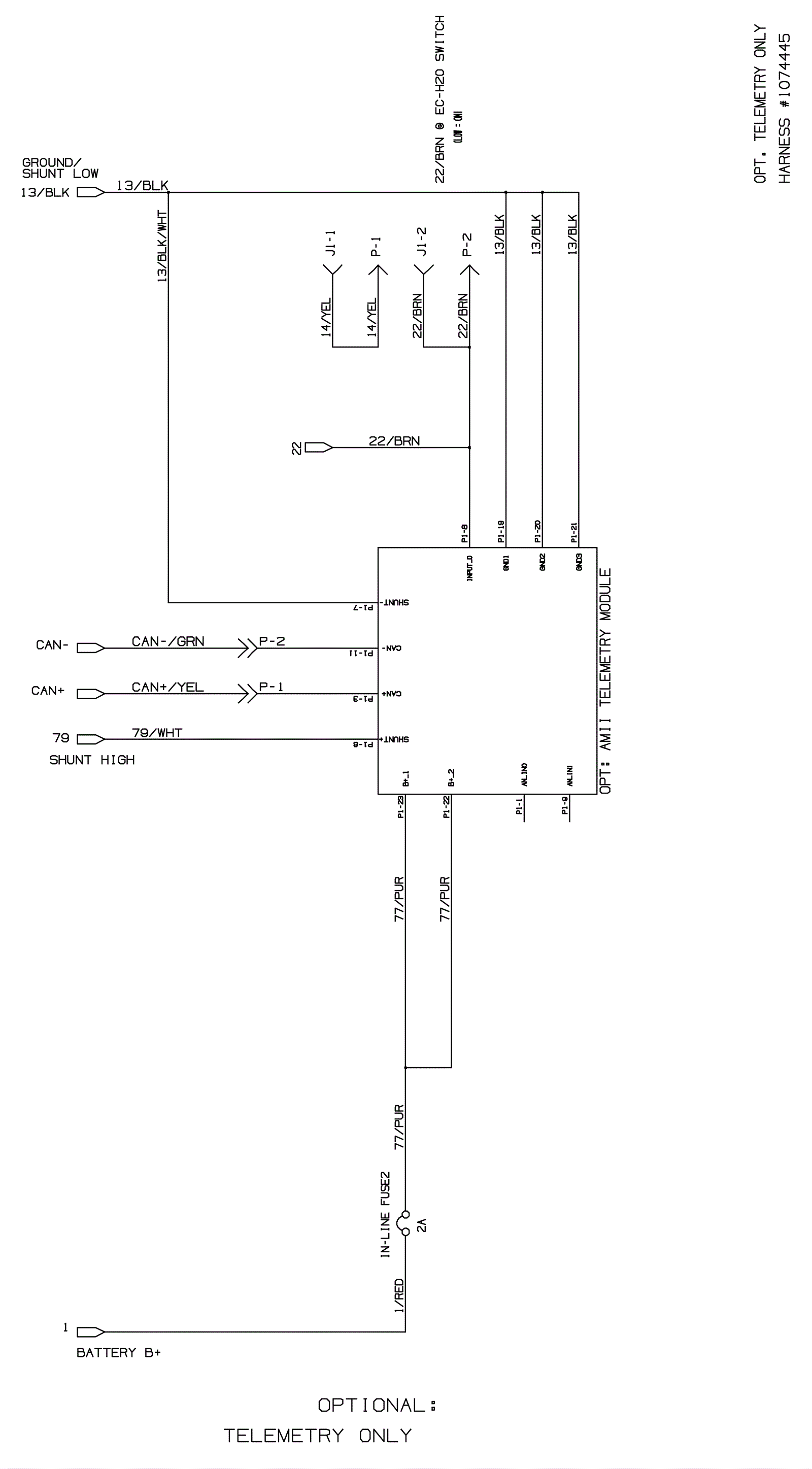
FaST and ec-H2O Electrical Diagram - After SN 10742213 - Part 2
Click to enlarge