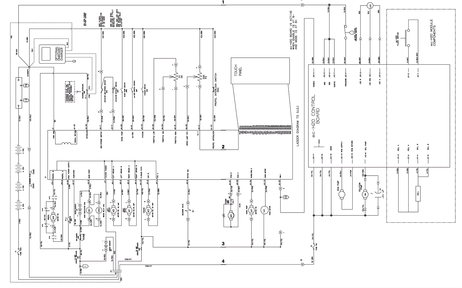
FaST and ec-H2O Electrical Diagram - After SN 10742213 - Part 1
Click to enlarge