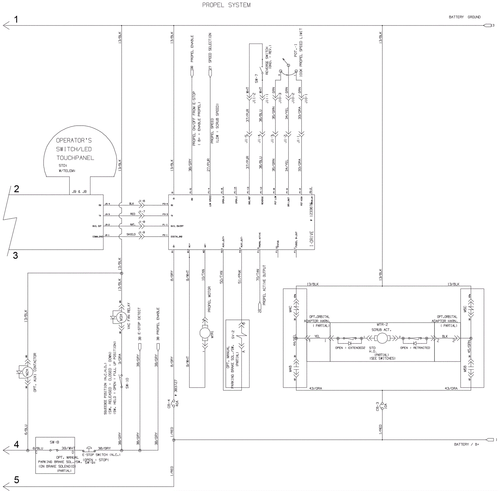
Electrical Diagram - Wet Lead Acid Battery 2
Click to enlarge