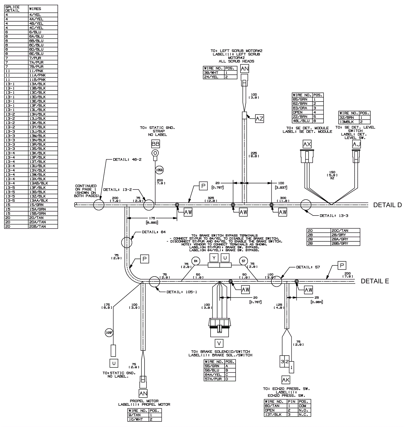
Electrical Harness - after SN 11011871 3
Click to enlarge