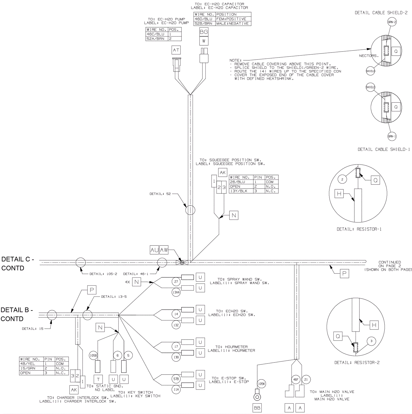
Electrical Harness - after SN 11011871 2
Click to enlarge