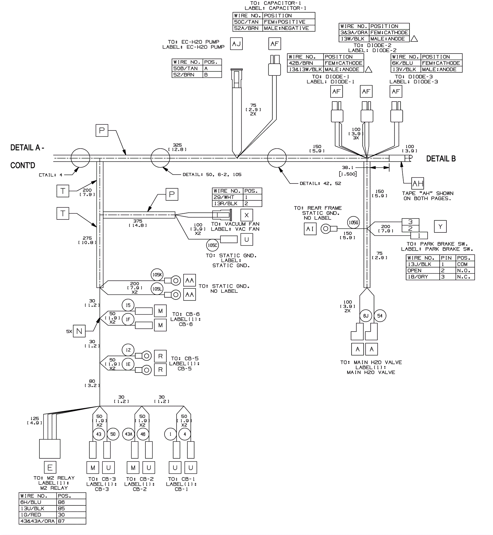
Electrical Harness 2 - Push - Before SN 10825201
Click to enlarge