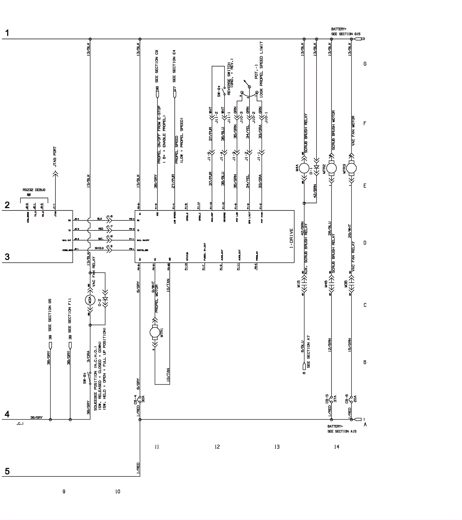
Electrical Assembly 2 - Propel - After SN 10891949
Click to enlarge