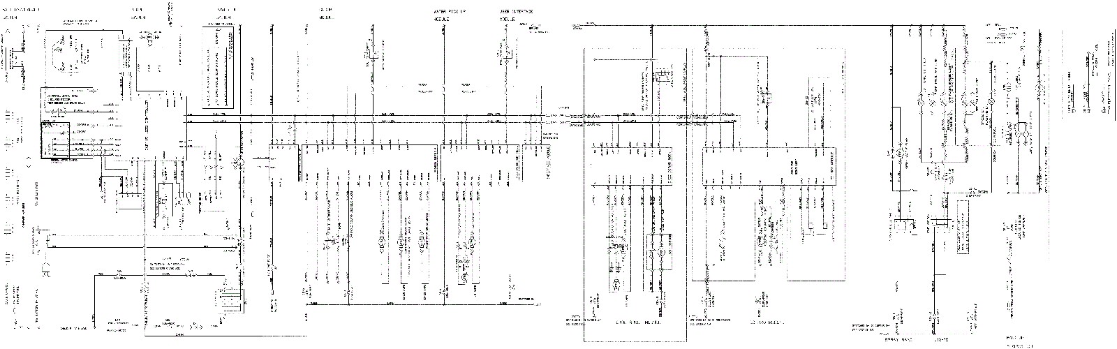
Electrical Schematic Assembly - Before SN 30077835
Click to enlarge