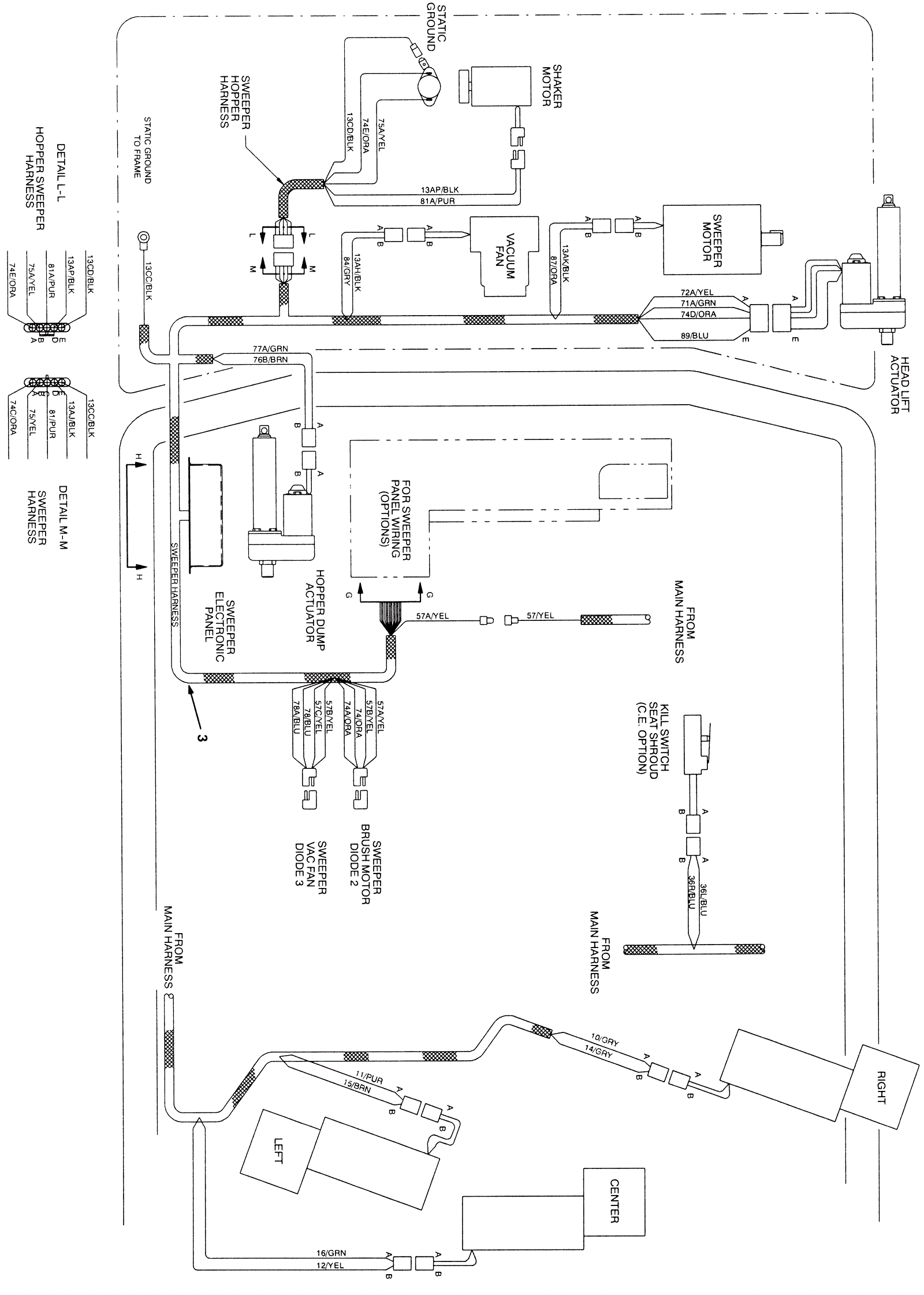
Wire Harness Group 4
Click to enlarge