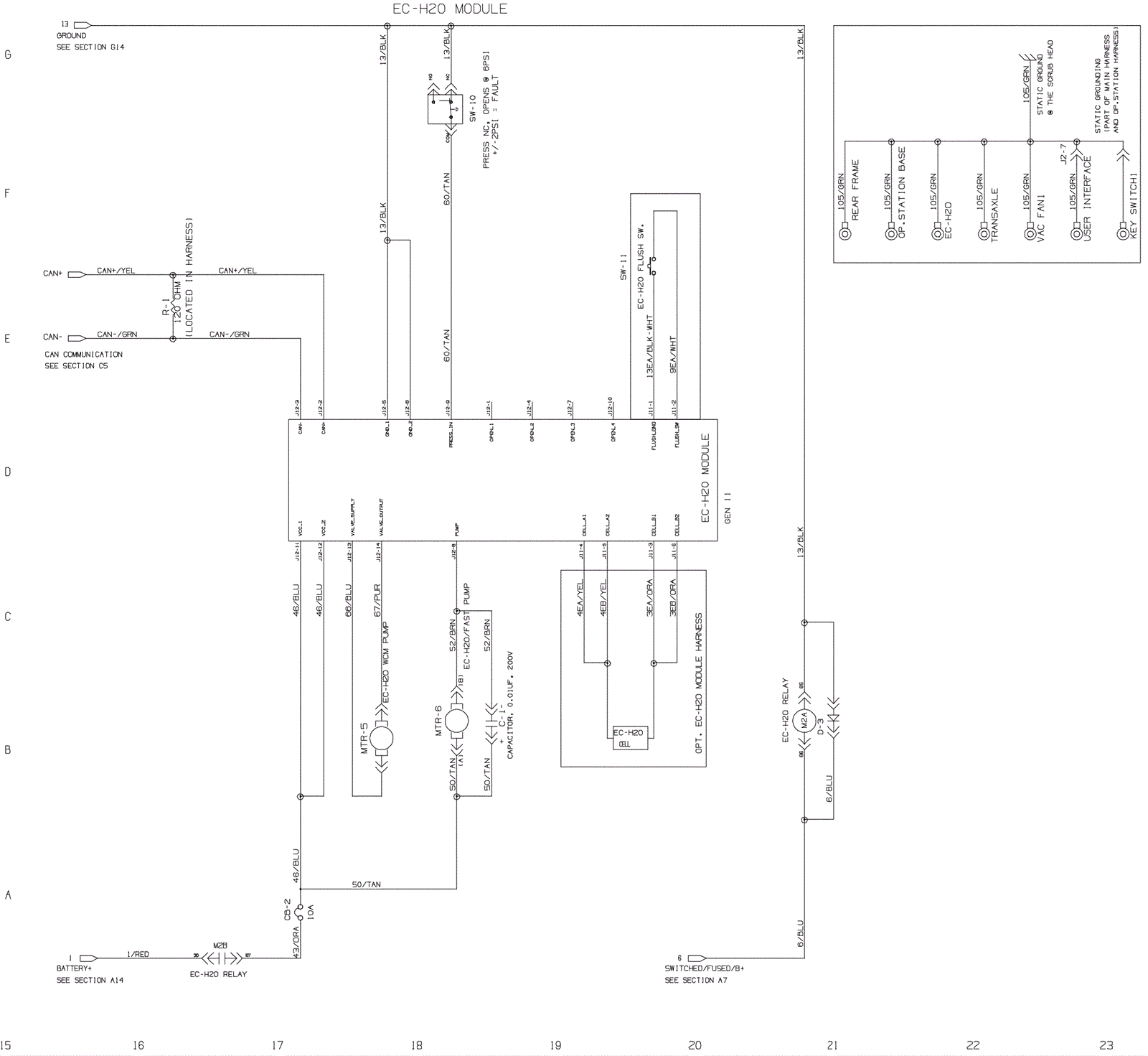
Wiring Diagram - Propel Model - 3
Click to enlarge