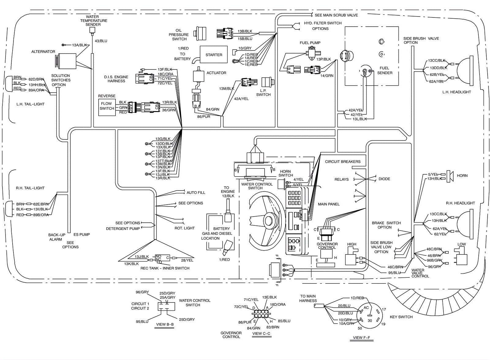
Wiring Harness Assembly - Before SN 008999
Click to enlarge