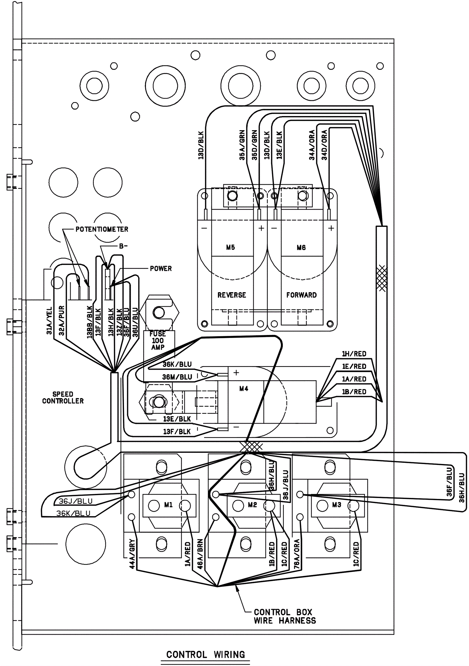
Wire Harness Assembly - 2 - After SN 001839
Click to enlarge