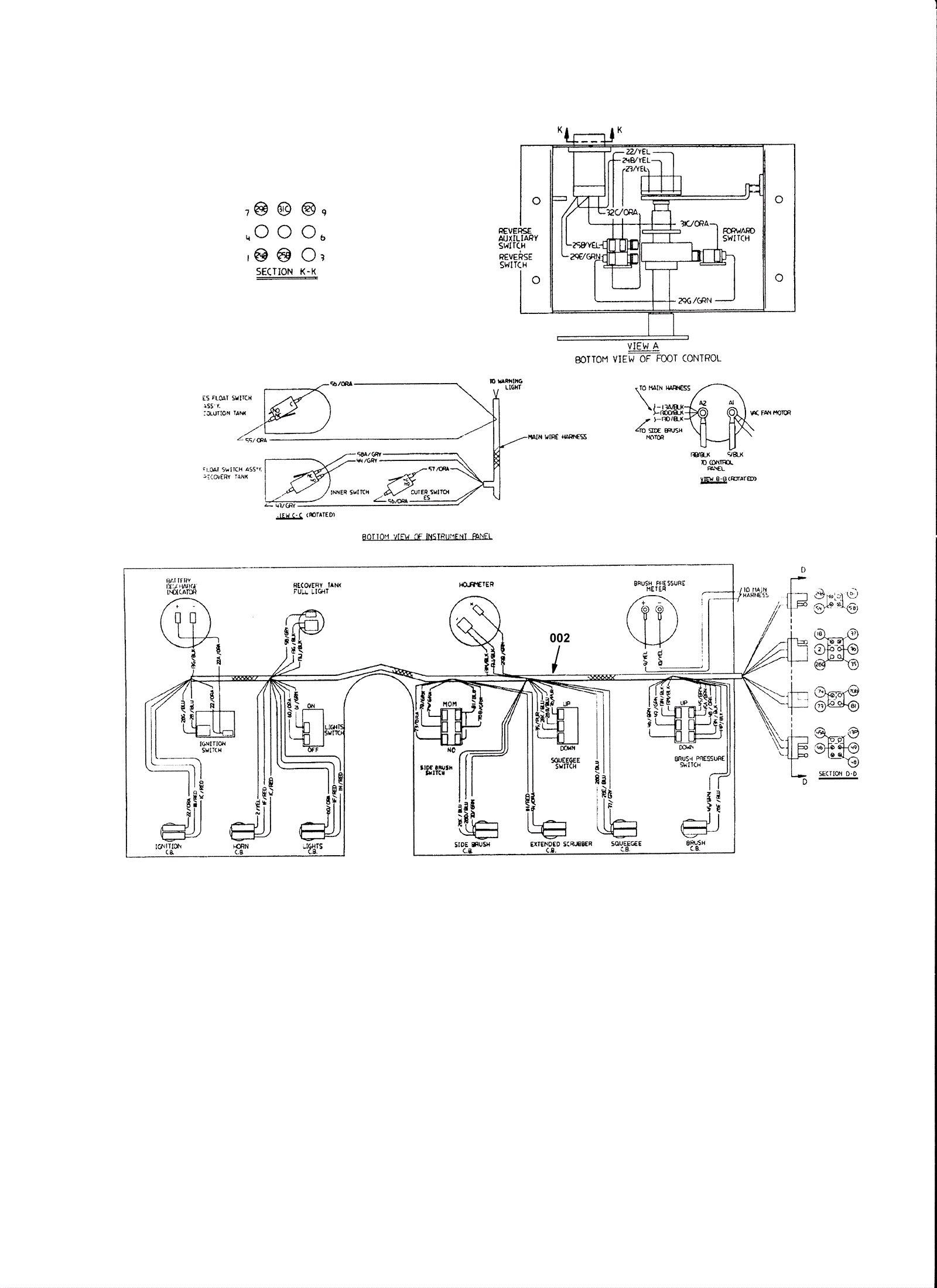
Wire Harness Group 3
Click to enlarge