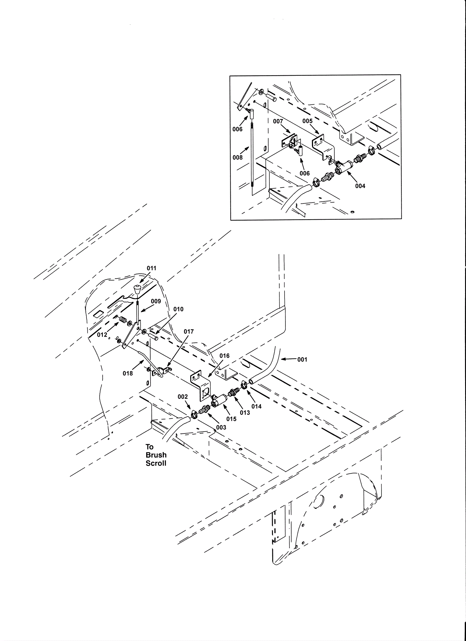
Solution Control Valve Group 1
Click to enlarge