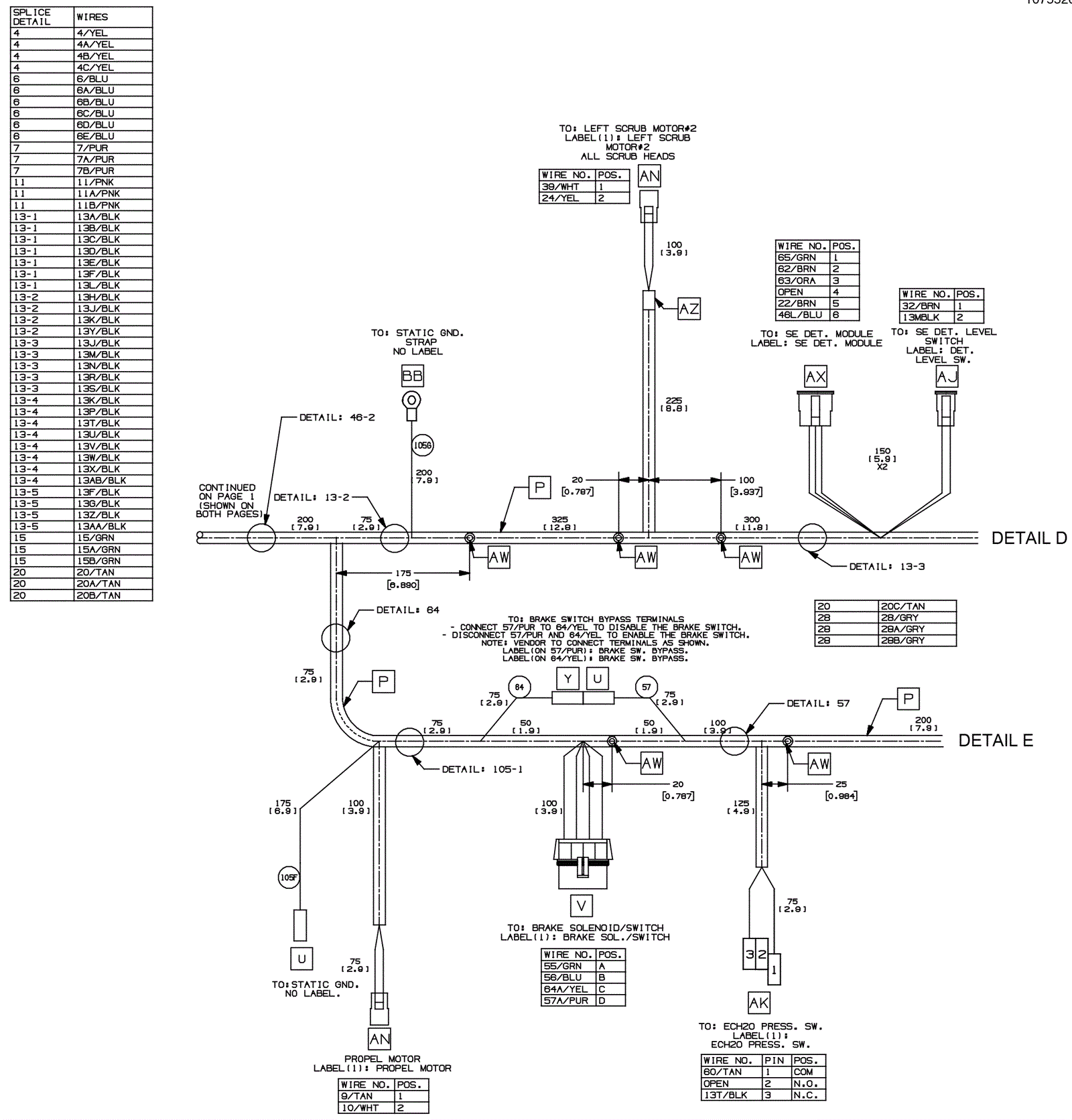
Electrical Harness - before SN 11011872 3
Click to enlarge