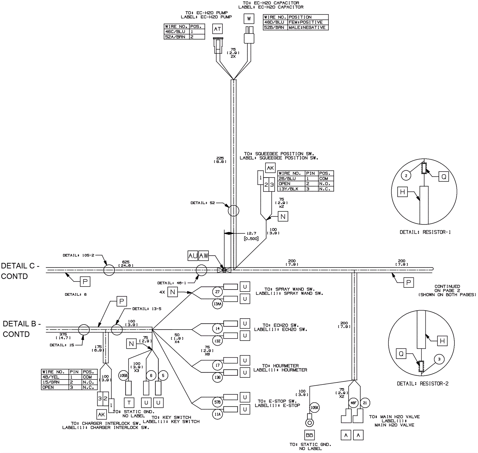
Electrical Harness - before SN 11011872 2
Click to enlarge