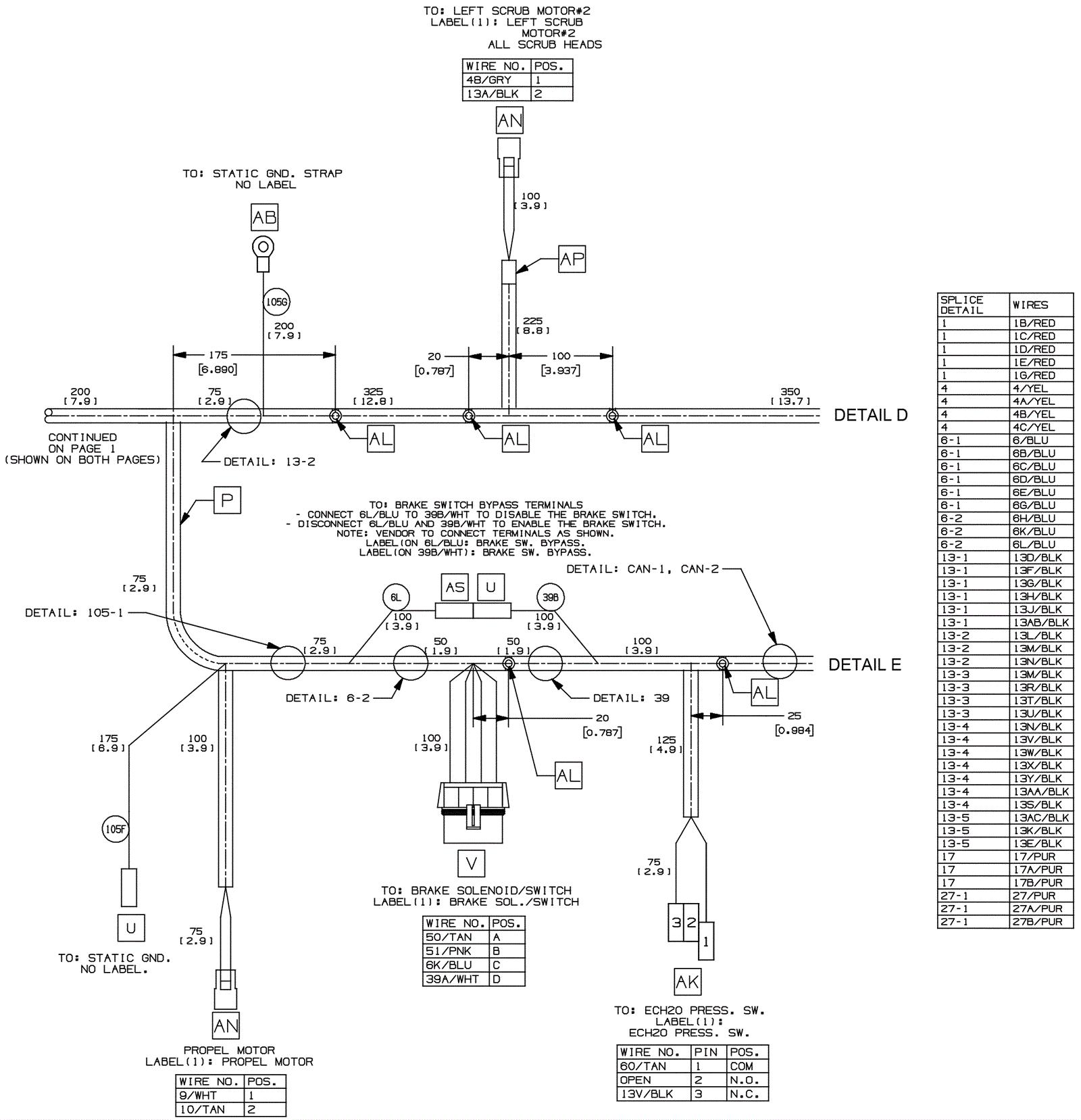
Electrical Harness - before SN 11011883 3
Click to enlarge