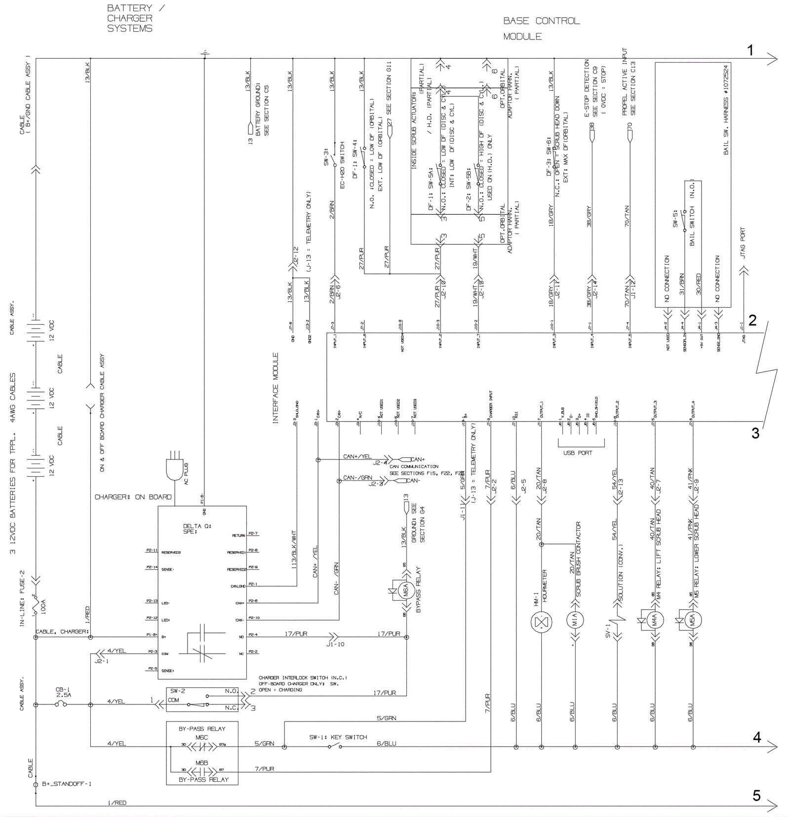
Electrical Diagram - TPPL Battery 1
Click to enlarge