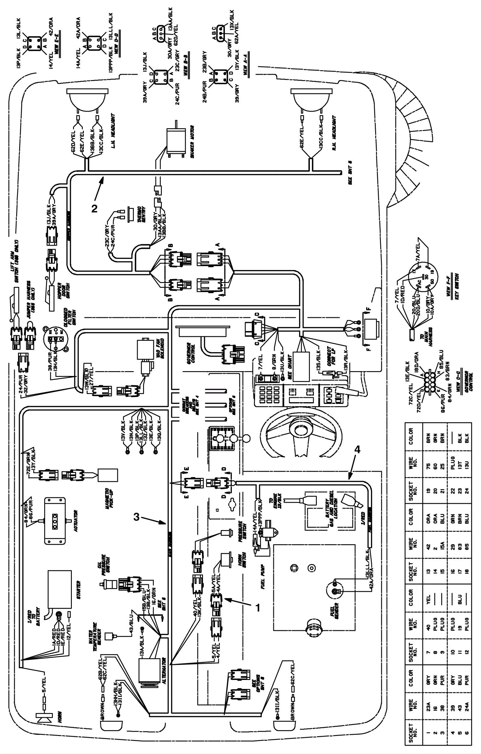
Wire Harness Assembly Diagram-1
Click to enlarge