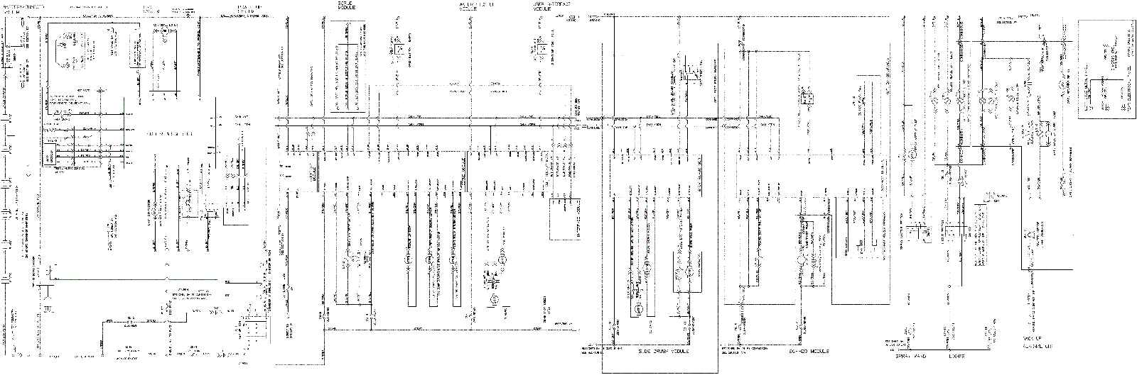
Electrical Schematic Assembly - After SN 30077834
Click to enlarge