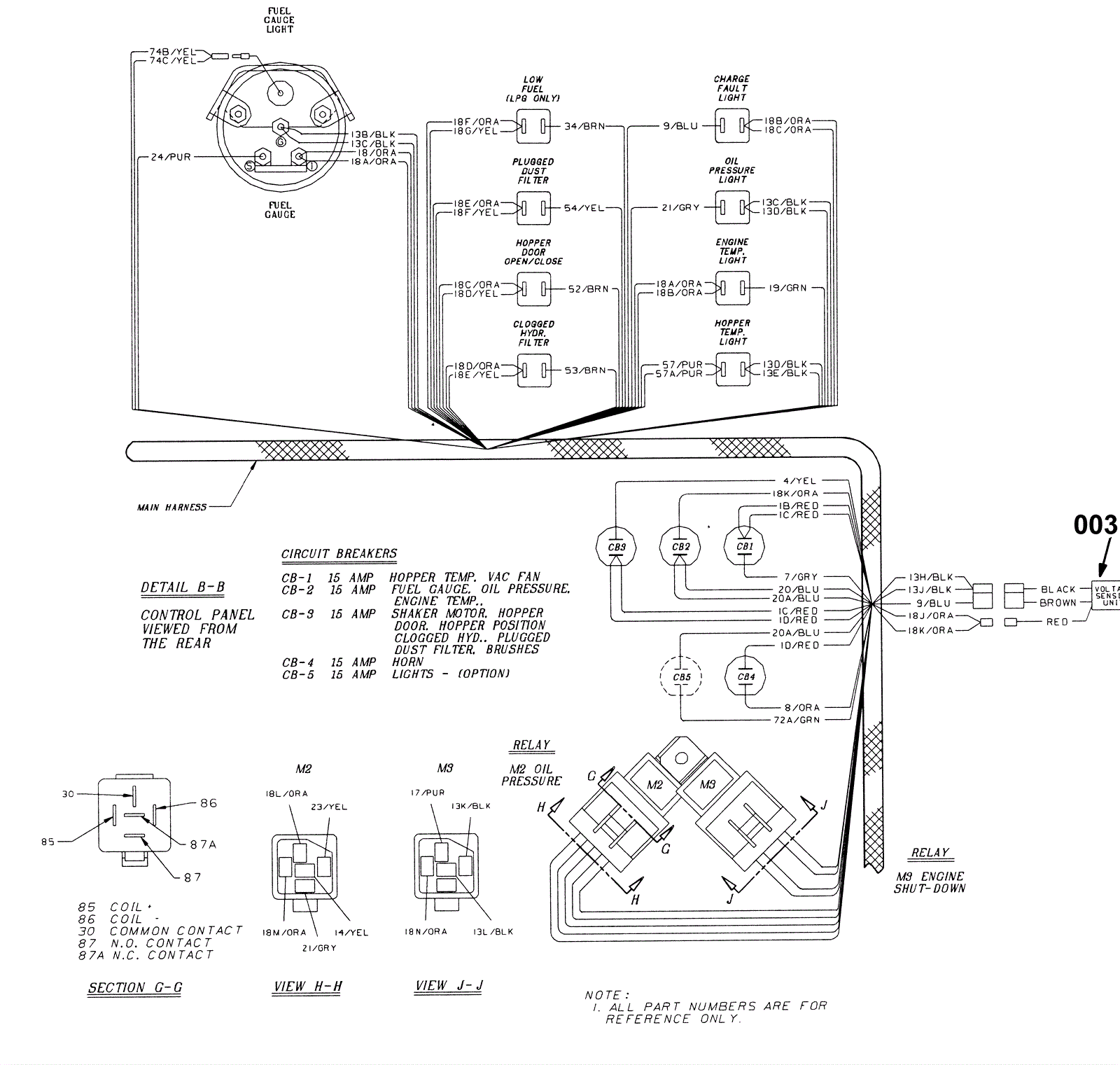
Wire Harnesses Group, G/LP (Air Cooled) 2
Click to enlarge