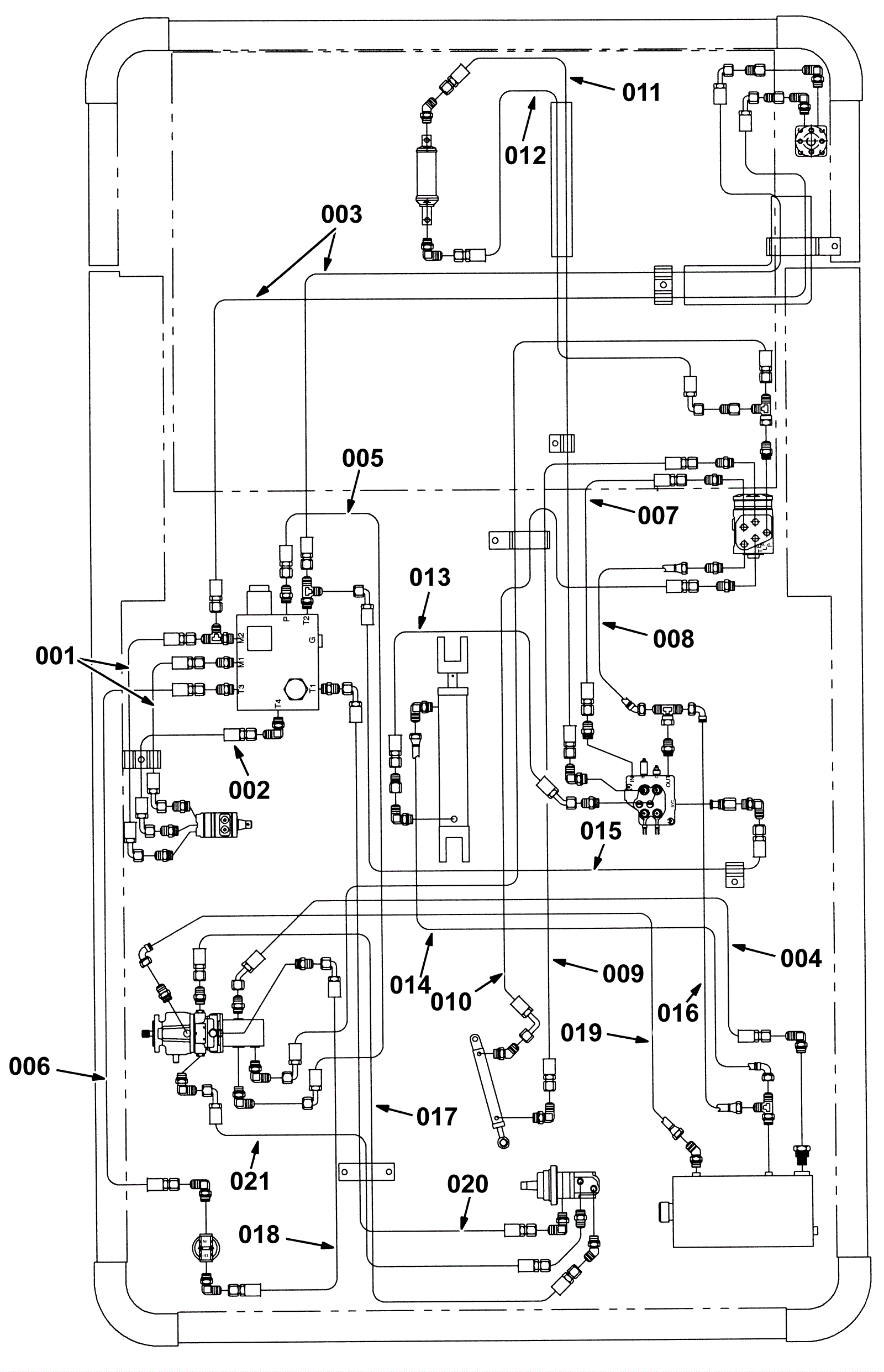
Hydraulic Hose Group
Click to enlarge