Commodore Duo (Gray)
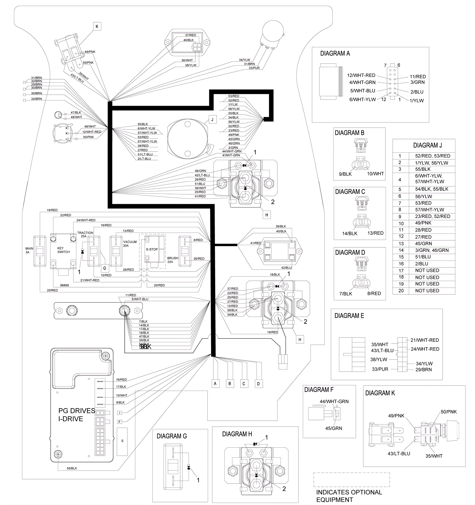
Wiring Control Panel- Basic Assembly
Click to enlarge
#
Part
Description
Price
Req
Notes
Availability
1
173-1716
Diode assembly
$57.55
3
usually ships 11-15 days
2
173-5604
Recovery diode assembly
$39.44
2
usually ships 11-15 days
3
273-0226
Basic panel harness
$560.25
1
usually ships 1-5 days