ARMADA BRC 40/22
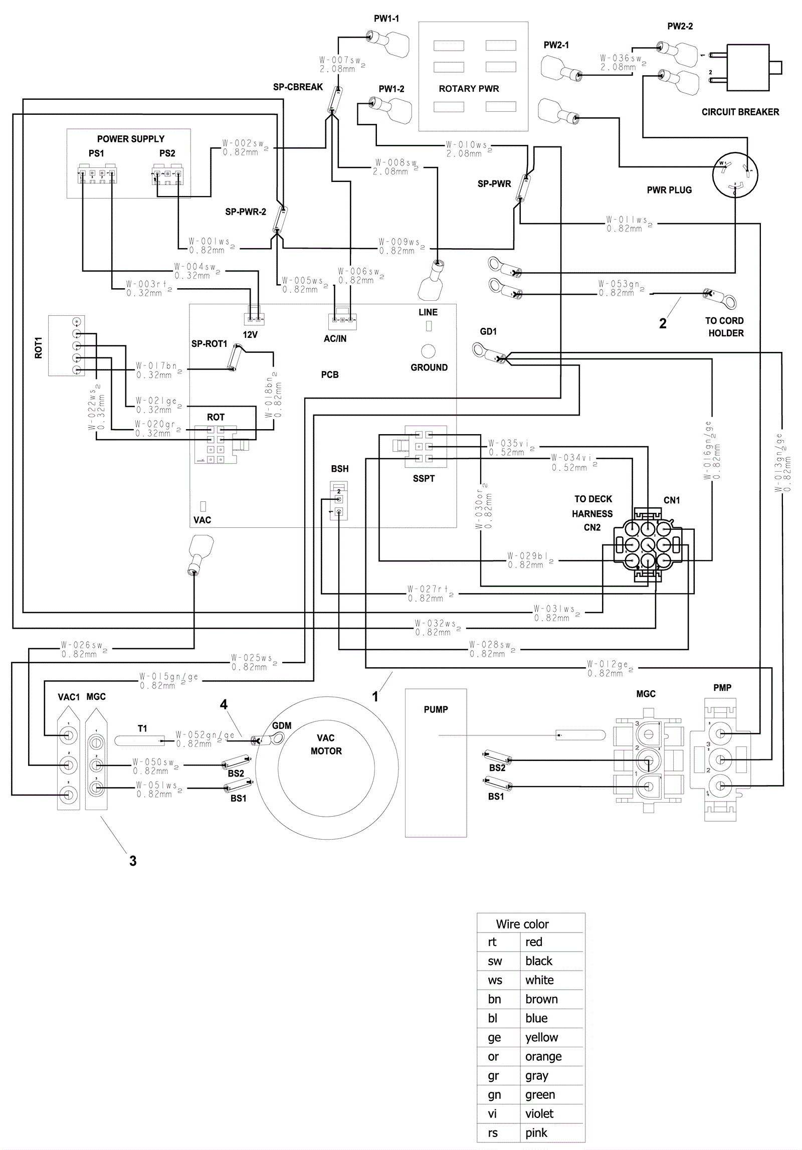
Wiring Diagram - Part 1
Click to enlarge
#
Part
Description
Price
Req
Notes
Availability
1
273-8546
Wiring harness
$87.45
1
usually ships 11-15 days
2
173-2218
22 inch wire (green)
$14.60
1
usually ships 1-5 days
3
273-8547
Vacuum motor harness
$25.89
1
usually ships 11-15 days
4
273-8548
Wire
$13.42
1
usually ships 11-15 days