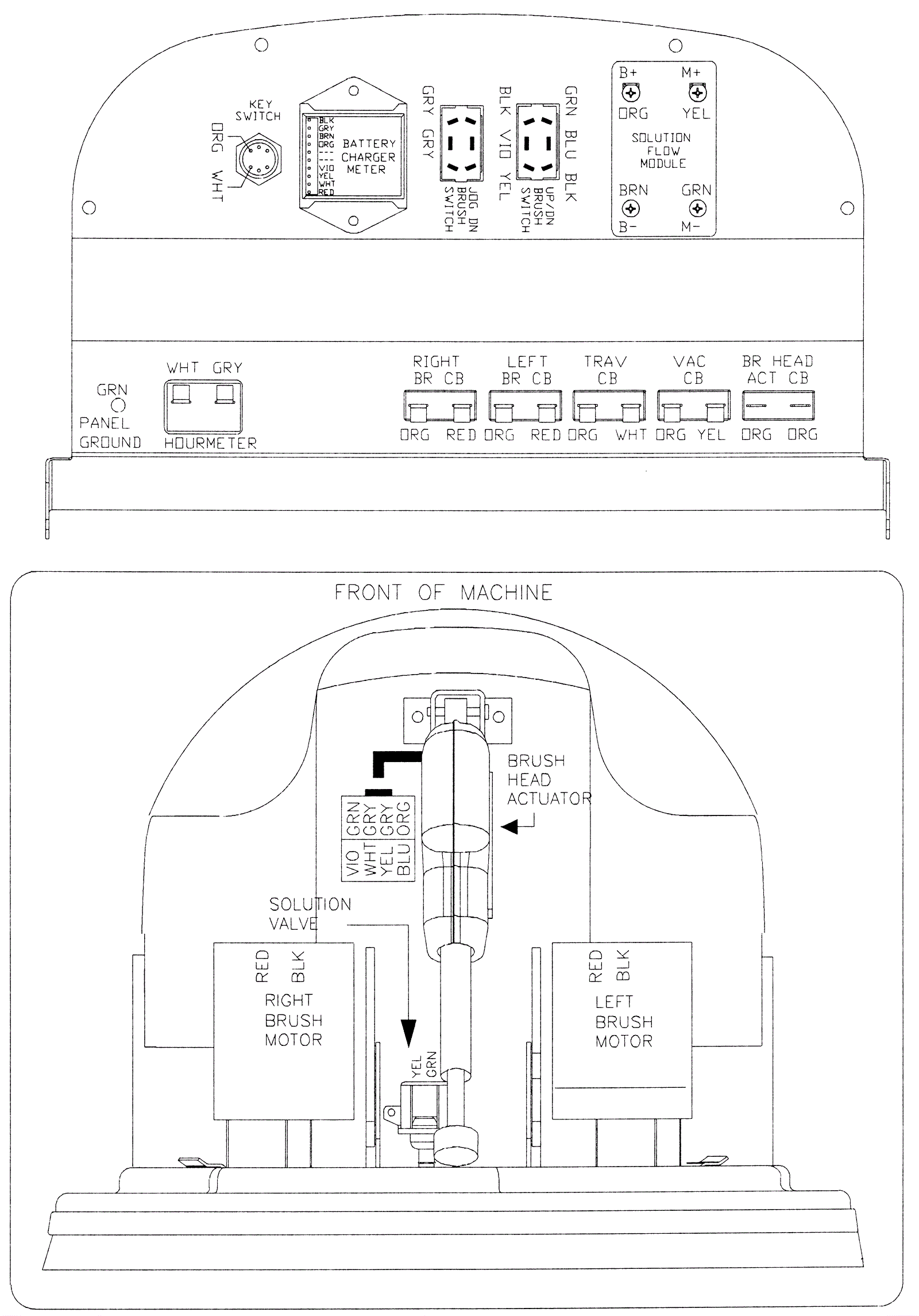
Control Panel Connection Diagram 1
Click to enlarge