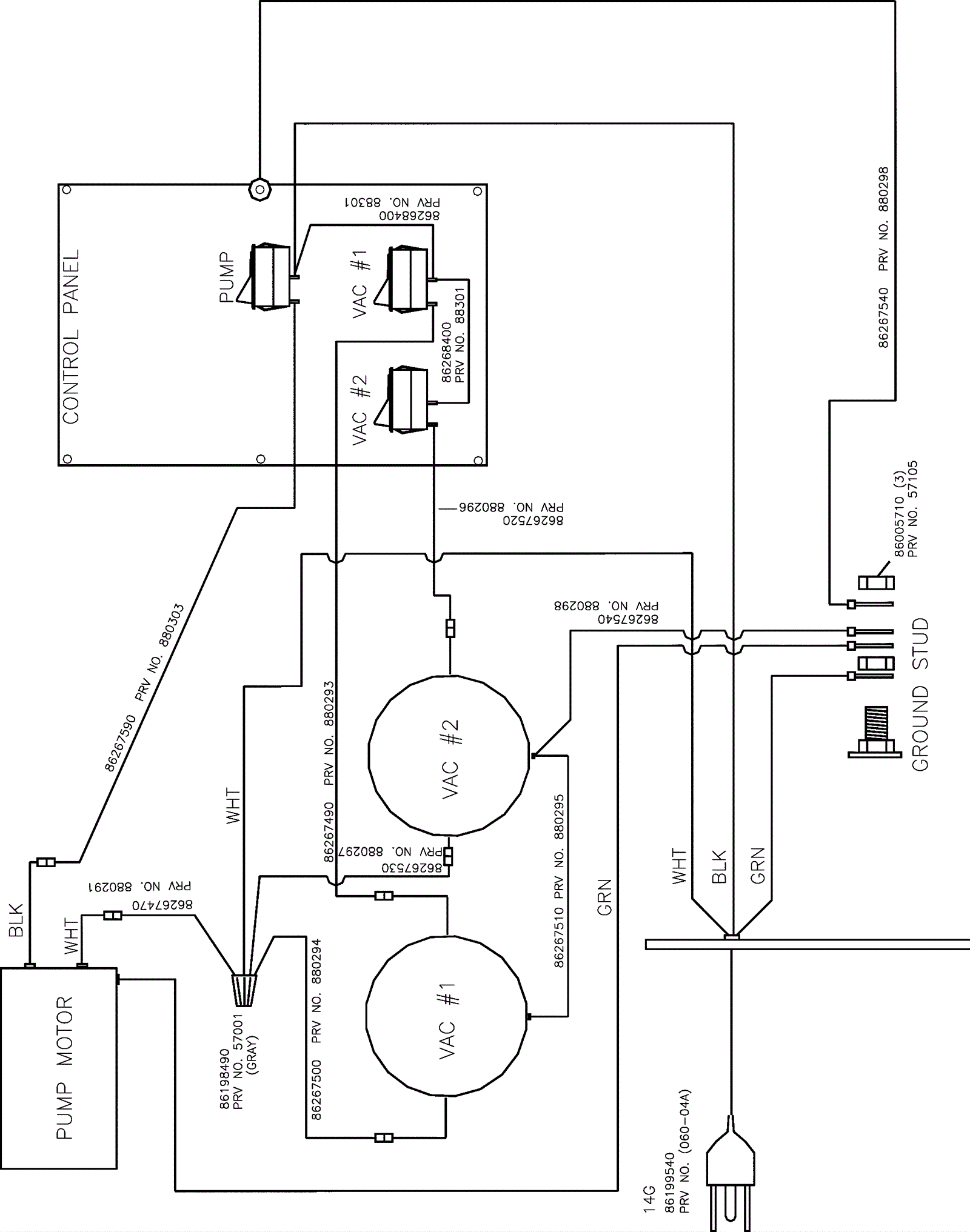
Wiring Diagram - 2 Stage
Click to enlarge