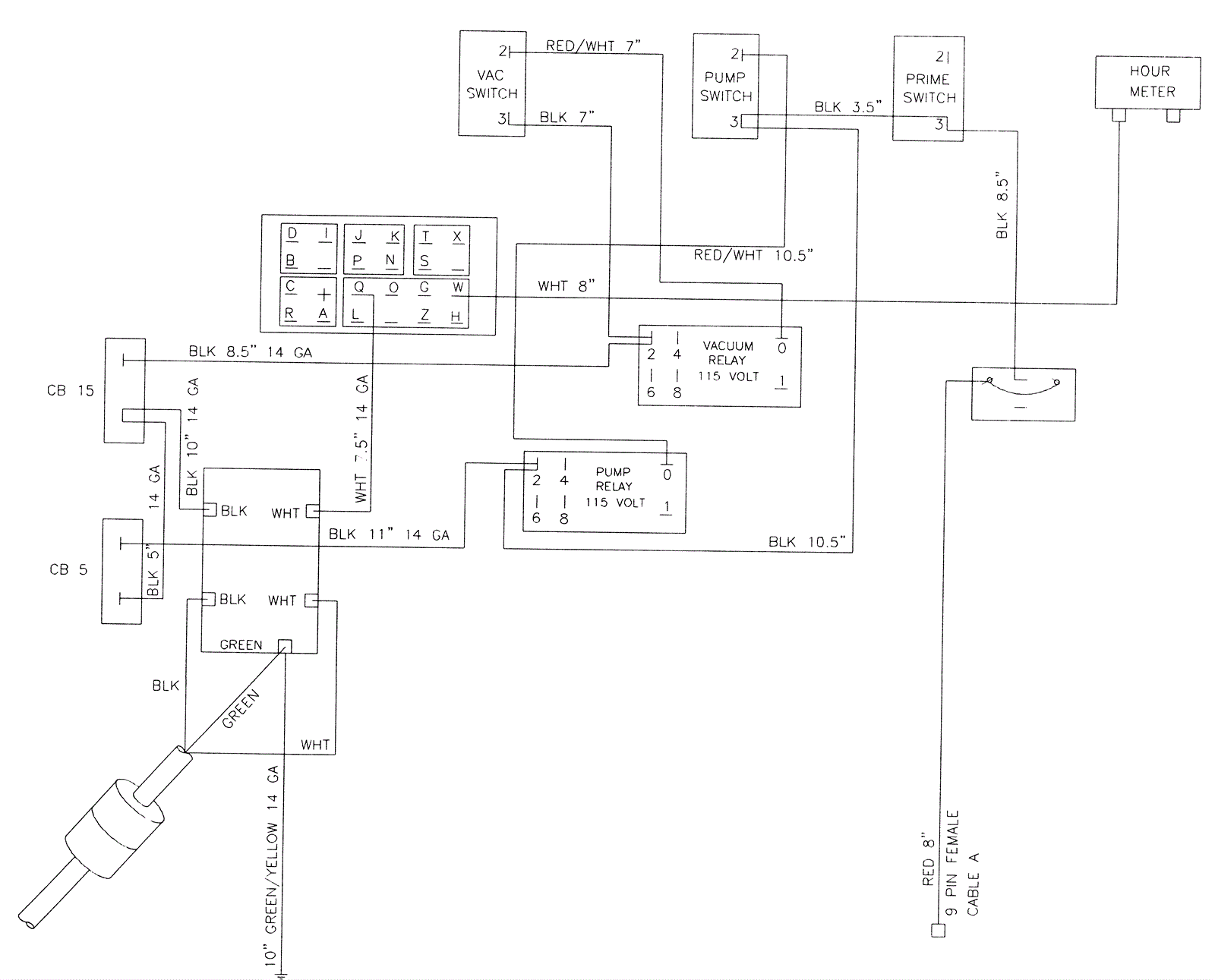
Wiring Diagram 8 - 115V
Click to enlarge