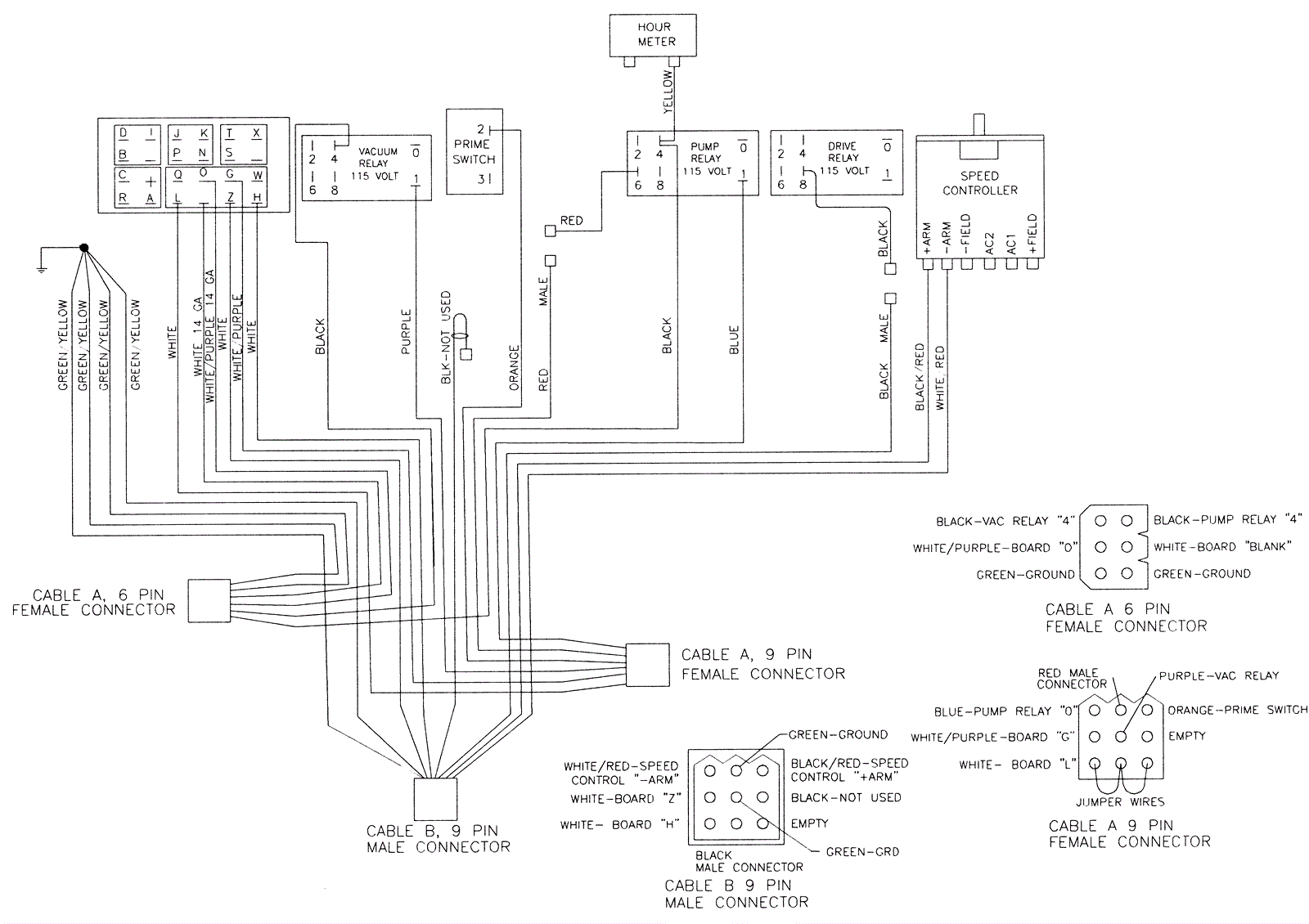
Wiring Diagram 5 - 115V without Cleaning Switch
Click to enlarge
#
Part
Description
Price
Req
Notes
Availability
0.9835
216-0013
Speed controller
$164.29
usually ships 1-5 days