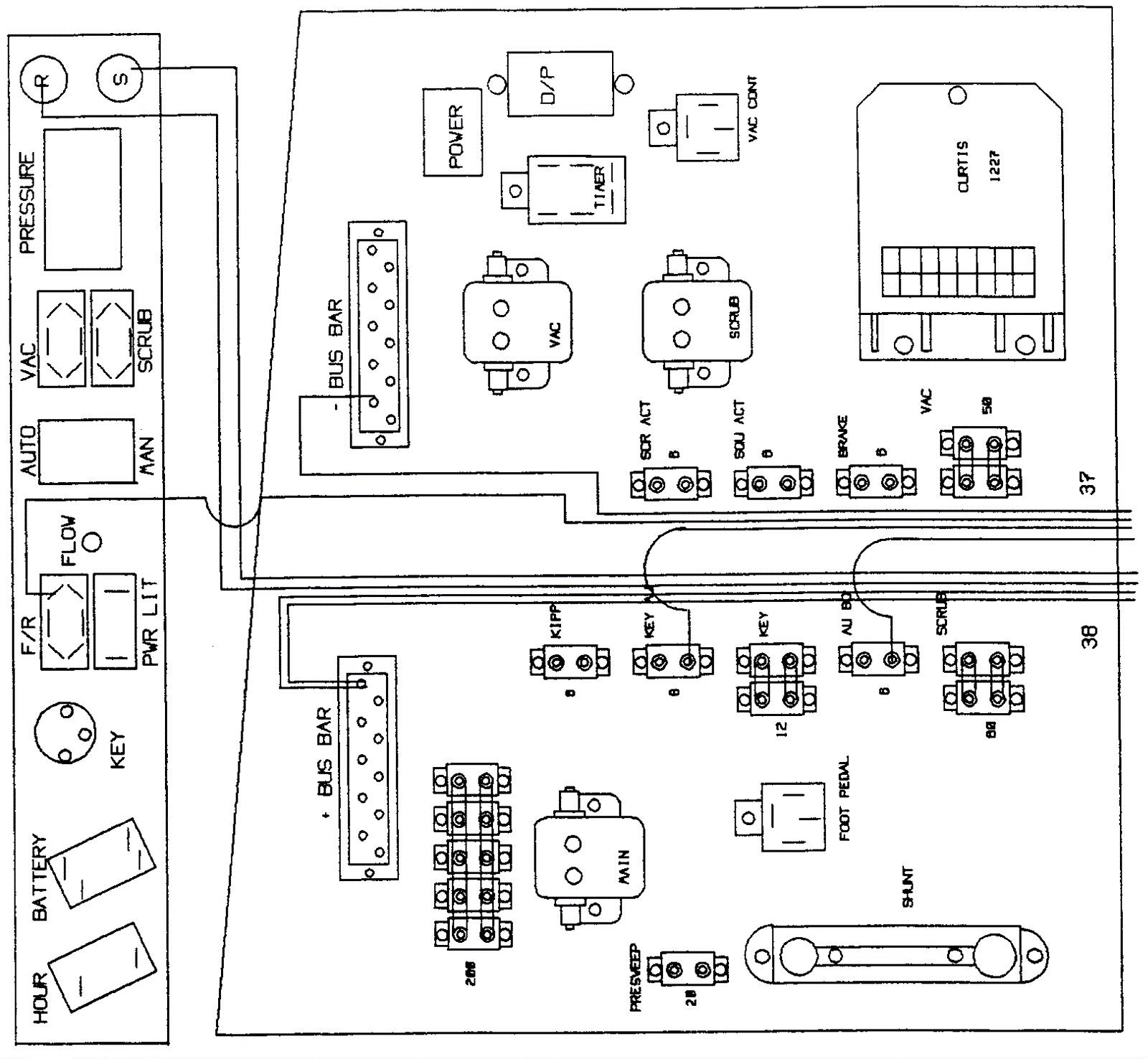
Wiring Diagram-7
Click to enlarge