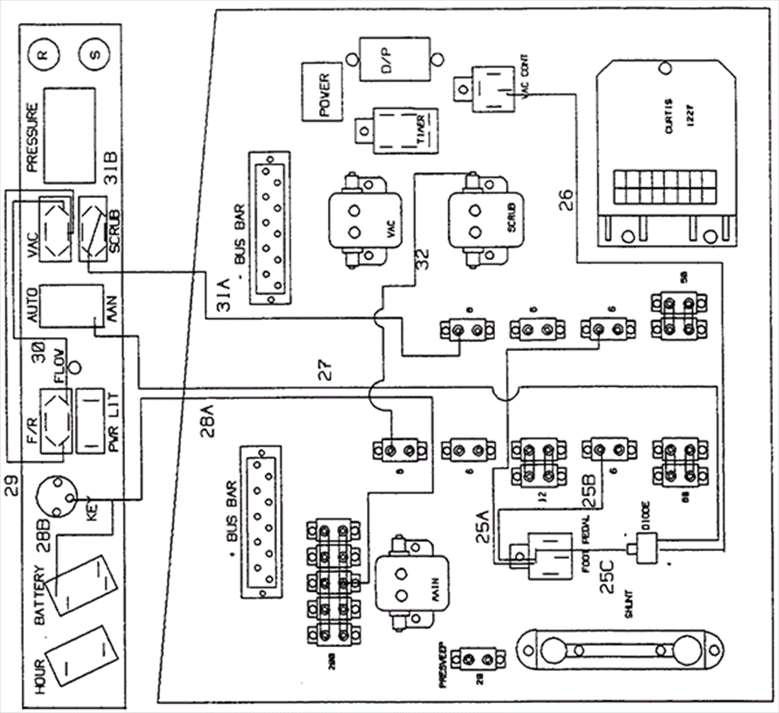
Wiring Diagram-4
Click to enlarge