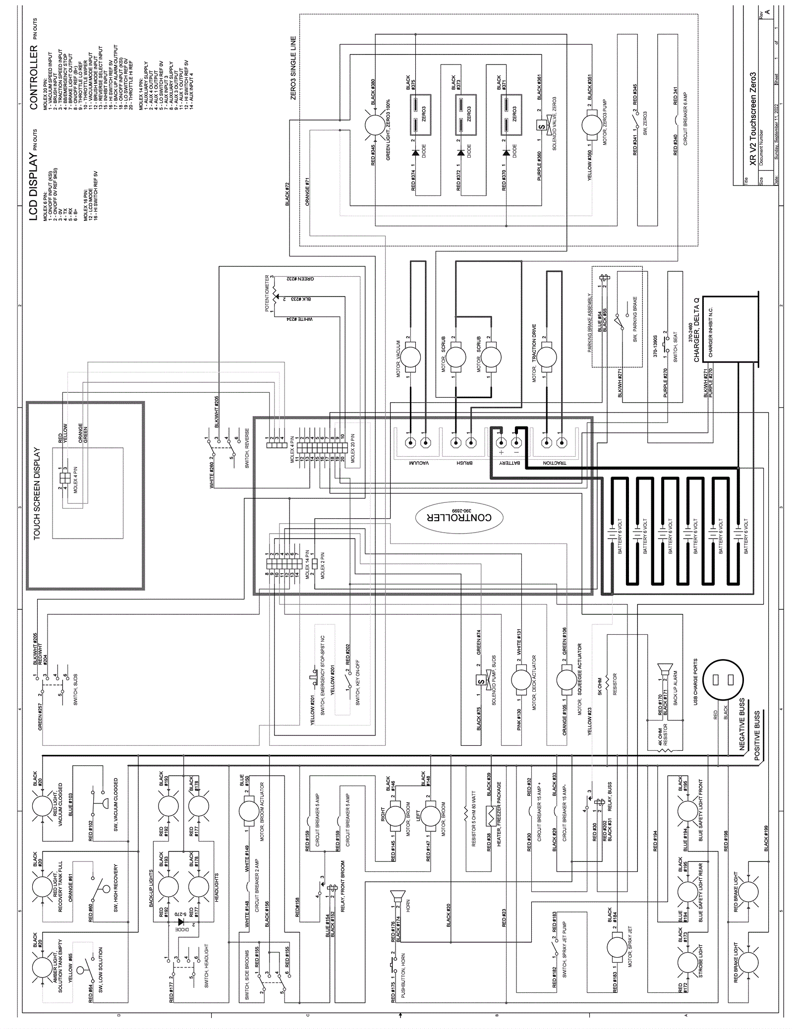
Wiring Diagram-Touchscreen
Click to enlarge