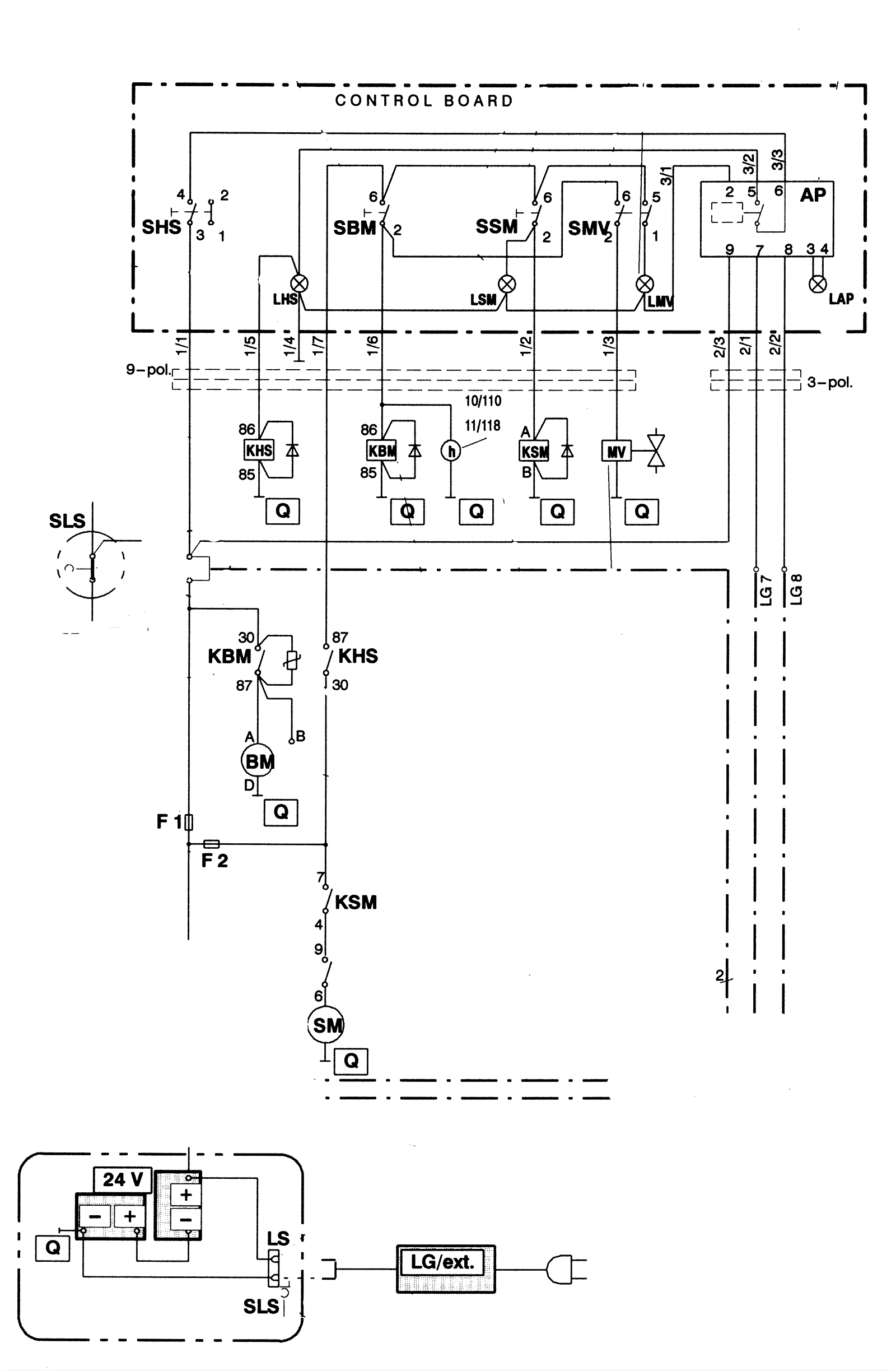
Electrical Diagram - Series 06 Part 2
Click to enlarge