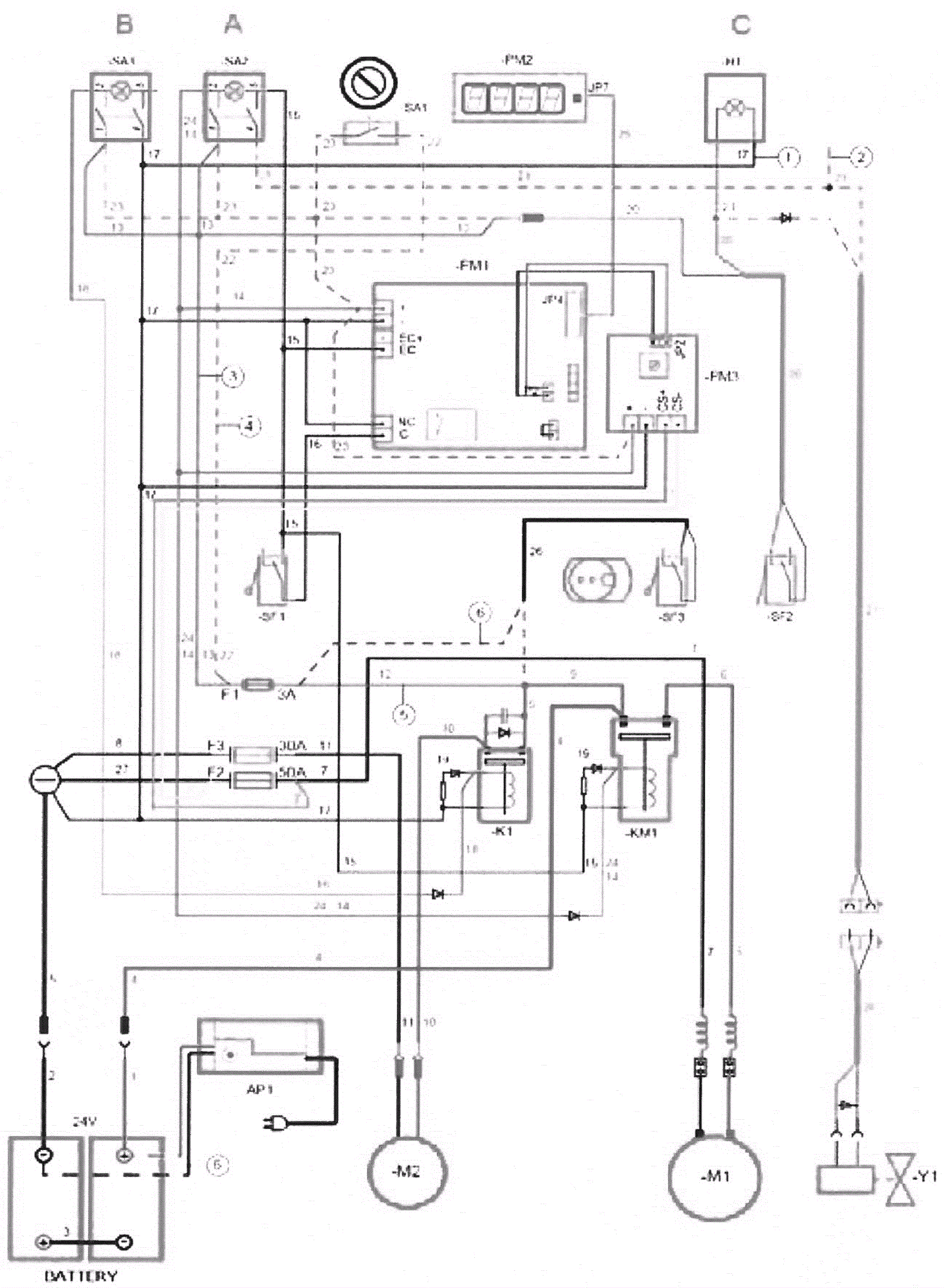
Wiring Diagram - Part 2