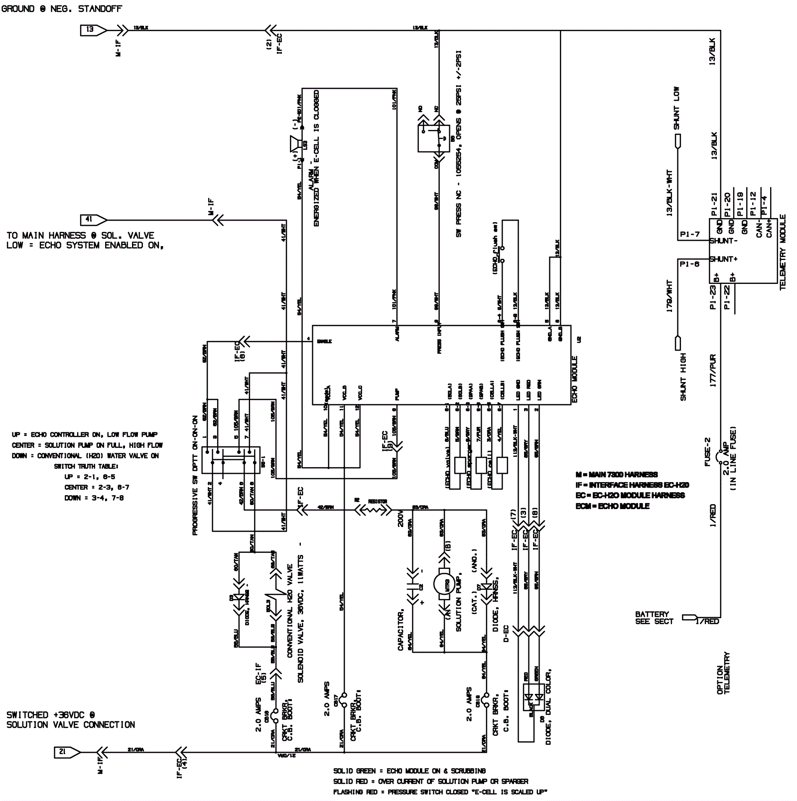
Electrical Schematic 3 - After SN 003746
Click to enlarge