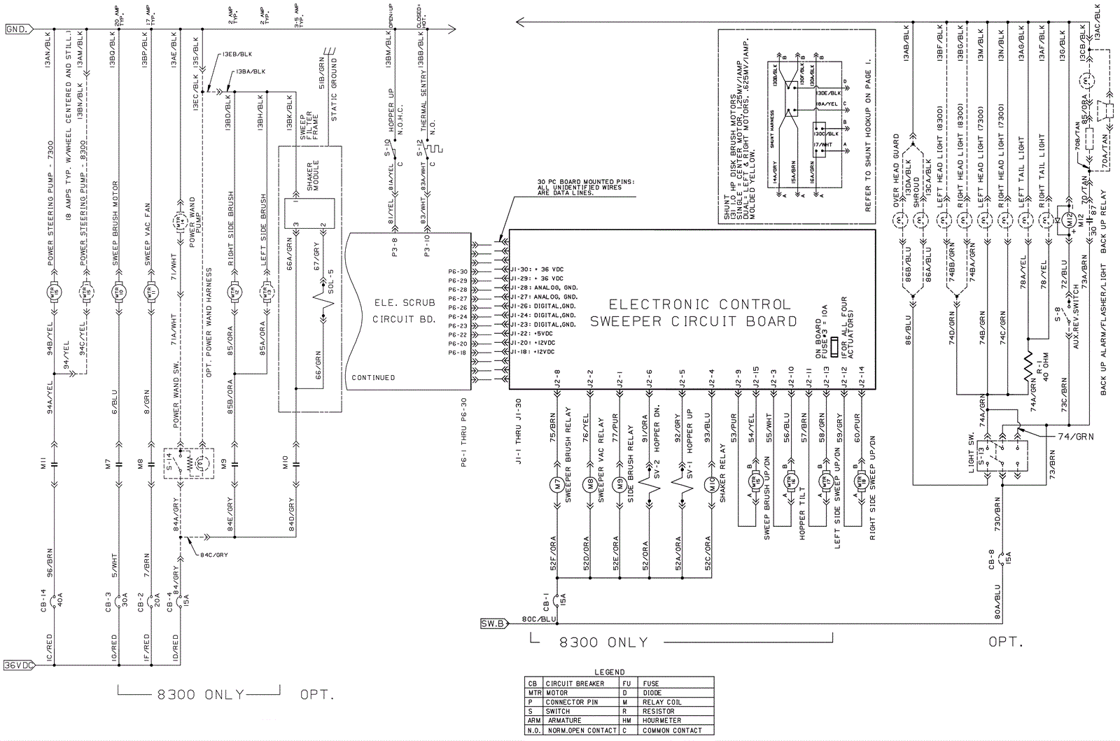
Electrical Schematic 2 - After SN 003746
Click to enlarge